Остеклить балкон системой Слайдорс. Процесс выбора. Раздвижные окна на лоджию: Slidors или Provedal?
- Остеклить балкон системой Слайдорс. Процесс выбора. Раздвижные окна на лоджию: Slidors или Provedal?
- Slidors недостатки. Главные отличия Проведал и Слайдорс
- Слайдорс или распашные. Сравнение характеристик: Provedal VS Slidors
- Слайдорс технические характеристики. Технические характеристики системы
- Slidors профиль. Преимущества профиля Slidors
- Slidors каталог. Slidors
Остеклить балкон системой Слайдорс. Процесс выбора. Раздвижные окна на лоджию: Slidors или Provedal?
Выше я частично объяснила, что обычные окна съедают много места при распахивании, а также без упреков совести отбирают крохи солнечного света своими толстыми рамами. На 4х метровую лоджию это 5 створок или 4 гигантских. Тут выбор падает в пользу раздвижных окон.
Для тех, кто еще не вникал в вопрос, но выбор окон для балкона или лоджии не за горами, поясню, что можно выделить два типа остекления — холодное и теплое. К теплому относят пластиковые окна в классическом понимании (одна или более камер/тип открывания створок распашные + откидные). К холодному — в основном раздвижные алюминиевые окна Provedal. Окна Слайдорс дают возможность сделать из лоджии нечто среднее, что я называю «не люто холодный, но и не дико теплый». Уникальная особенность Slidors в том, что они являются раздвижными, но в отличие от Provedal имеют стекло пакет.
Slidors недостатки. Главные отличия Проведал и Слайдорс
Главные отличия профиля Проведал от Слайдорс заключаются в материале изготовления профиля, что напрямую влияет на сферу применения.
При создании раздвижной системы Provedal используется алюминиевый профиль, поэтому их устанавливают только при холодном остеклении лоджий и балконов.
Это отнюдь не связано со свойствами металла, а с тем, что его толщина составляет 60 мм с возможностью вставить стекло 4 мм, а не стеклопакет, обладающий большими теплоизоляционными характеристиками. Главная задача таких окон — защитить помещение от проникновения пыли, ветра и повышенной влажности.
Профиль Слайдорс изготавливается и поливинилхлорида и чаще используется при теплом остеклении. Это становится возможным, благодаря выбору желаемой толщины рамы — она бывает 58, 60 и 70 мм.
В такую конструкцию можно вставить не только одинарное стекло, но и стеклопакет с двумя полотнами и одной камерой. После установки сложных оконных раздвижных моделей коэффициент теплоизоляции и шумопоглощения увеличивается в несколько раз.
Существенным отличием является функциональность в зимнее время. Так как в окнах раздвижной системы Provedal монтируют низкие рельсы, во время снегопада и низких температур профиль блокируется и открыть такое окно не представляется возможным. При остеклении Слайдорс используют высокие направляющие, которые остаются рабочими даже в сложных погодных условиях.
Остекление Provedal и Slidors отличается и по универсальности. Первые являются оригинальными. При установке и обслуживании допустимо использование только родных комплектующих. Вторая система позволяет подобрать подходящие москитные сетки или фурнитуру других брендов.
Слайдорс или распашные. Сравнение характеристик: Provedal VS Slidors
Правильно определить, что лучше Проведал или Слайдорс, можно при внимательном изучении условий эксплуатации. На рынке профильных систем Provedal является бюджетным вариантом остекления, отличается простотой установки и легким весом. Холодный алюминий обладает низкими теплоизоляционными свойствами, поэтому помещение сложно будет утеплить и полноценно эксплуатировать в зимний период.
Слайдорс обладает отличными изоляционными характеристиками, благодаря возможности установки стеклопакета. Профиль не устойчив к механическим повреждениям, поэтому требует аккуратного проведения монтажных работ. Помещение с теплым остеклением можно превратить в комфортное пространство.
При монтаже система Slidors или Provedal собирается на месте, что облегчает транспортировку и подъем в многоэтажных домах. Главные отличия профиля Проведал от Слайдорс заключаются в весе конструкций. Легкий алюминий применяется для выносного остекления.
Отличием профильных систем можно считать трудности эксплуатации. Раздвижные системы из алюминия в зимний период легче очистить от снега. При обледенении полозьев пластиковый профиль легче подвержен повреждению.
Многие клиенты интересуются профилями Provedal или Slidors, что лучше выбрать для остекления. Алюминиевые конструкции устанавливают на лоджиях, балконах, верандах.
Главная задача окон из алюминиевого профиля заключается в защите помещения от проникновения пыли, ветра и влажности. Система Слайдорс применяется при теплом остеклении, что обеспечивается благодаря широкому ассортименту продукции, которая бывает 58, 60 и 70 мм .
При монтаже сложных раздвижных систем повышается показатель изоляции тепла и шума. Алюминиевые конструкции комплектуются специально разработанной фурнитурой, а для профиля ПВХ допускается установка москитных сеток и комплектующих других брендов.
Если вы хотите Остеклить свой балкон алюминиевым профилем Проведал или Слайдорс Вы можете оставить заявку и наши менеджеры перезвонят Вам для расчета стоимости.
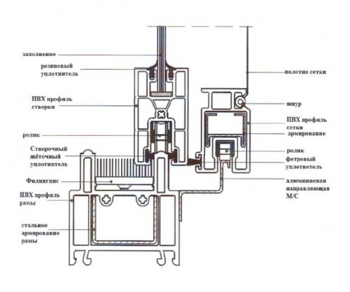
Слайдорс технические характеристики. Технические характеристики системы
Рама изготовлена из профиля ПВХ, имеет 3 камеры и вставки, которые препятствуют попаданию ветра и влаги внутрь помещения. Конструкция оснащена двойным щеточным уплотнителем. Многие подобные модели имеют одинарный стеклопакет, используемый для остекления балконов и лоджий.
За счет толщины стеклопакета можно сократить потерю тепла в 3 раза. Эта толщина может быть различной: от 6 до 14 мм.
Системы Слайдорс для балконов имеют направляющие, благодаря которым происходит перемещение сворок.

Изделия этой фирмы отличаются высокой степенью прочности, т. к. их основанием является каркас из металлического профиля. Окно способно выдержать различные нагрузки, в т. ч. и сильные порывы ветра. Конструкция обладает такими техническими характеристиками:
- Оконный профиль, состоящий из 3 камер, может иметь ширину 58, 60 и 70 мм. Защищен от промерзания.
- Конструкция оснащена рамными углами, которые дают возможность транспортировать ее в разобранном состоянии.
- Прочное оцинкованное армирование.
- Оснащенность высоким рельсом и створками, защищенными от намокания и промерзания.
- Закругление рельса для плавного хождения створки.
- Филингпис — изоляция от продувания и несанкционированного снятия створки.
- Ролик способствует легкому монтажу и плавному скольжению.
- Створки идут в комплекте со стеклом и стеклопакетом (согласно требованиям заказчиков).
- Особые серповидные замки, препятствующие взлому и промерзанию.
- Двухсторонний герметичный уплотнитель.
- У рамы учитывается ширина со стеклопакетом: ее размеры 18 мм, что обеспечивает высокое сопротивление теплоотдаче.
Этот профиль подходит для остекления балконов и лоджий. По сравнению с алюминиевыми конструкциями такой профиль лучше сохраняет тепло и более износостойкий.
Slidors профиль. Преимущества профиля Slidors
В конце 90-х годов на российском рынке появилась корейская компания Slidors, специализирующаяся на производстве высококачественных профилей ПВХ. Россияне сразу полюбили её. И в этом кроется несколько причин.
Слайдорс является раздвижным пластиковым профилем эконом-класса. При этом он обладает хорошим качеством. Единственный его недостаток в том, что относится к смешанному типу остекления. Для жилых помещений он не подходит, а для балконов и лоджий, как раз то, что надо.

Изготавливаются окна Slidors из экологически безопасного поливинилхлорида. Они являются прочными, легкими по сравнению с пластиковым профилем КВЕ и теплыми, в отличии от алюминиевого профиля Provedal.
Данная профильная система проста в использовании, хотя имеет сложное устройство. Фурнитура, поставляемая российскими производителями, препятствует проникновению холода в помещение, поскольку створки плотно прилегают к окну. Также герметичность остекления Slidors защищает от атмосферных осадков, шума и пыли, о чем говорят многочисленные отзывы покупателей.

Slidors профиль постоянно усовершенствуется. Сейчас выпускают стеклопакеты с теплосберегающим покрытием. Оно не выпускает тепло с помещения и в жаркую погоду не пропускает солнечные лучи вовнутрь , таким образом, экономит зимой на отоплении, и создает прохладу летом.
В отличии от профиля из алюминия , в Slidors устанавливаются щеточные уплотнения, которые имеют пластиковую прокладку. Находятся они с двух сторон между створкой и профилем.
Слайдорс – единственная профильная система, которая подходит для балконного окна с любым размером и формой.
Что касается раздвижных систем, то они не замерзают в сильные морозы и вы, не прилагая особых усилий, откроете окно. Сам механизм может иметь и нераздвижные створки, при этом раздвижные будут открываться наиболее удобным для вас способом. Что является очередным преимуществом.
Профиль слайдорс оснащен защитным замком в виде серпа и пластиковой деталью – филингписом, которые не дадут ни малейшей возможности проникнуть в дом нежеланным гостям. От комаров защитит свободно передвигающаяся по всей площади окна москитная сетка . Для нее предназначены отдельные рельсы.

Москитная сетка на раздвижные окна Слайдорс
Окна пластиковые слайдорс подойдут в любой интерьер помещения, поскольку их можно заламинировать пленкой необходимого цвета и текстуры, например дерева. А значит можно сэкономить на деревянных окнах, а вид останется таким же привлекательным.
Slidors каталог. Slidors
Профильная система SLIDORS
В 2003 году открылось совместное российско-южнокорейское предприятие по выпуску профилей slidors, специально адаптированных для эксплуатации в российских климатических условиях. SLIDORS (Слайдорс) – раздвижная профильная ПВХ-система для остекления балконов и лоджий, разработанная южнокорейской компанией «HANWHA».
Система SLIDORS (Слайдорс) представляет собой раздвижную конструкцию, в которой створки перемещаются параллельно друг другу аналогично конструкции шкафа-купе. Рамы и створки изготовлены из армированного ПВХ-профиля, соединенного прочными угловыми элементами. Для обеспечения высокого качества продукции на предприятии работают южнокорейские специалисты, при производстве используется сырье, поставляемое из Южной Кореи и Японии.
Slidors – раздвижная система остекления балконов и лоджий из ПВХ профиля, в которой заполнением может служить как стекло 4, 5, 6 мм, так и однокамерный стеклопакет 14 мм.

Впервые в России профили Slidors появились в конце 90-х годов. Постепенно марка становилась все более популярной, и уже в 2001-м году продукция Slidors отпускалась с двух складов (на Дальнем Востоке и в Москве). Спустя еще два года в России было запущено производство профилей ПВХ Slidors. В начале 2003 г. в г.Владивостоке было начато строительство совместного российско-корейского предприятия «Изумруд-Экструзия», ориентированного на производство, прежде всего, профильной системы Слайдорс: шла подготовка помещений, монтаж и наладка экструзионного оборудования, разработка новых видов профилей и рецептуры с учетом российских реалий. А в конце 2003 года уже была отгружена первая партия рамного профиля, экструдированного в России.
В настоящий момент можно говорить о том, что профильная система Слайдорс производится в России. Рамные и створочные профили раздвижной ПВХ-системы Слайдорс (и полный комплект профилей евро-системы DAR-WIN, элементы которой используют для изготовления глухих частей при остеклении балконов и лоджий Слайдорс) производят на заводе "Изумруд-Экструзия" (г.Владивосток). Соединитель импоста под заказ штампуется на Полевском металлофурнитурном заводе. Поставщиками армирования являются ведущие российские производители армирующих профилей. Алюминиевый рельс под москитную сетку поставляет крупный завод-производитель ВИДНАЛ-Прогресс (г. Видное). В качестве вспомогательных профилей в работе со Слайдорс можно использовать соединительные и подставочные профили широко распространенных в России профильных систем REHAU и WELTPLAST. Поставщиком внутренних и внешних угловых соединений для систем SLIRORS и DAR-WIN, а также щеточных уплотнителей является компания Sowel Int. (Южная Корея). Резиновые уплотнители поставляет Secil Rus (российское представительство турецкой компании Secil). При разработке профильной системы использовались технологии и ноу-хау лидера химической промышленности Южной Кореи, производителя системных профилей корпорации HANWHA L&C Corp. Сегодня число переработчиков профильной системы Слайдорс в России и ближнем зарубежье превышает сотню компаний. Комплектуют их 2 региональных склада (и 11 дилерских).