Форточка своими руками в деревянном окне. Завершение рабочего процесса
- Форточка своими руками в деревянном окне. Завершение рабочего процесса
- Окно с форточкой своими руками. Этапы изготовления деревянного окна
- Форточка в деревянном окне. Деревянные стеклопакеты с форточкой. Преимущества и недостатки конструкции
- Деревянные форточки. Разновидности и особенности конструкций рам
- Деревянная форточка своими руками. Изготовление окон
- Сделать форточку в пластиковом окне. Можно ли сделать форточку в пластиковом окне
- Как сделать форточку в глухом окне: простые шаги и советы
- Установка форточки в пластиковое окно. Сделать_форточку_в_пластиковом_окне_после_установки
- Как врезать форточку в окно. Завершение рабочего процесса
Форточка своими руками в деревянном окне. Завершение рабочего процесса
Установка форточки с помощью наружного стекла.
Далее при помощи дрели и сверла по дереву высверливают среднюю часть, тем самым образуя паз с одной округлой стороной. Чтобы соединение было плотным, шип необходимо скруглить. На горбыльке делают шип, а на фрамуге (части, которая разделяет створки) и на одной из вертикальных стоек рамы выбирают проушину. При этом необходимо проушины располагать симметрично и по размерам, указанным на чертеже. Для такой проушины можно использовать дрель и сверло, а шип подогнать под полученный паз.
Кроме того, допускается выполнение сквозной проушины для крепления горбылька. Аналогично с креплением на шип выполняют форточку.
После того как все детали будут готовы, можно приступать к сборке. Сначала выполняют сухую сборку (без клея). При необходимости выполняют подгонку, а затем склеивают. Дополнительно, для усиления крепления, можно на углах рамы и форточке прикрутить уголки. Форточку навешивают на петли. После этого можно приступать к пропитке и покраске окна.
Зачастую в квартирах советского времени установлены оконные блоки с узкой створкой, которая по замыслу проектировщиков предназначена для выполнения функции форточки. Однако, ее не всегда удобно открывать, поэтому многих домашних мастеров нужда заставляет делать форточку самостоятельно.
Кроме того, потребность в ее изготовлении может возникнуть в «глухих» оконных переплетах старых частных домов.

Деревянное окно с форточкой
Чтобы помочь в этом вопросе, далее мы рассмотрим, как сделать форточку в деревянной раме самостоятельно.
Окно с форточкой своими руками. Этапы изготовления деревянного окна
Подготовительный этап
На первом этапе нужно сделать правильные замеры, а из них уже чертеж. Благодаря чертежу можно рассчитать точное количество материала. От них будет зависеть конечный результат выполненной работы.
Подбирая материал, нужно знать, что древесина должна быть хорошо просушенная. На ней не должно быть сучков и трещин, они в будущем вызывают деформацию готового изделия.
Изготовления деревянного коробка
Для изготовления деревянного коробка достаточно взять доску размером 150*50 мм. На деталях коробка нужно сделать пазы. Они будут похожи на букву Г. Их глубина должна быть 15мм.
Четыре детали коробка нужно соединить между собой столярным клеем. Теперь нужно просверлить в сторонах блока отверстия. В отверстия вставить стержень, длинной 30 мм. Благодаря этому коробка будет закреплена под углом 90 градусов.
Потом просверливаем отверстие в стене, вбиваем дюбеля, крепим коробок при помощи саморезов. Щели, которые образуются между стеной и коробком можно залить монтажной пеной.
Изготовление оконной рамы
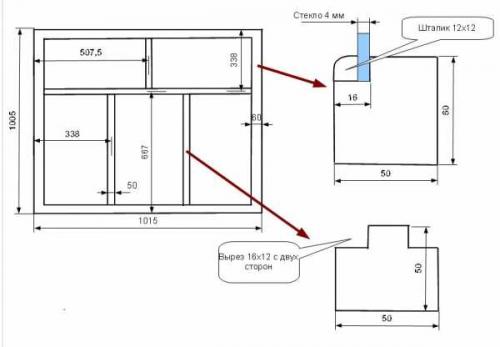
Для ее изготовления понадобится брус размером 60*40 мм. Форма профиля рамы зависит от количества стекол и их толщины, размеров штапиков. Профиль с одним стеклом имеет 2 паза, с двумя стеклами — 3 паза. Пазы нужны один или два для стекла и один для установки в коробок.
Толщина стекла должна быть 4 мм, а штапик — 10 мм. Доски нужно распилить строго по размерам и наискось, под углом 45 градусов. При помощи саморезов соединяем раму. Вкручивать их нужно так, чтобы в итоге они утонули в древесине.
Подготовка и вставка стекла
Обязательно позаботьтесь о безопасности. Нужно одеть рабочие рукавицы и очки. Размеры стекла должны быть определены с точностью до миллиметра.
Резку саморезом осуществляют вдоль линейки, которая должна быть длиннее стекла. Потом стекло кладут на край стола и надавливают рукой, ненужный кусок стекла с характерным звуком должен отвалиться.
Потом стекло вкладывают в раму, таким образом проверяя правильность размеров. После этого вытаскивают, на пазы рамы наносят герметик и прикладывают стекло, закрепляя штапиком. Штапики крепят или при помощи тоненьких гвоздей, или, если штапик толстый. при помощи тонких саморезов.
Установка деревянного окна своими руками
Готовое окно вставляется в коробку и крепится пазами. Фиксируется саморезами, которые должны пройти сквозь коробок. Все щели и отверстия герметизируют монтажной пеной. После того, как пена высохнет ее остатки обрезают и штукатурят стены. На последнем этапе нужно сделать монтаж отлива и подоконника.
Форточка в деревянном окне. Деревянные стеклопакеты с форточкой. Преимущества и недостатки конструкции
Не секрет, что сегодня современные пластиковые ипользуются большой популярностью. Тем не менее, существует определенный процент людей, которые пока воздерживаются от замены старых советских окон на новые деревянные со стеклопакетом. И дело здесь не только в финансовых возможностях.
Многим удобнее в эксплуатации старая добрая конструкция с форточкой, нежели современная с откидной створкой. Людей, придерживающихся таких взглядов, скажем прямо — немало. Однако именно для них, предпочитающих в окне старый способ проветривания, компании-производители наладили выпуск деревянных стеклопакетов с форточкой.
Плюсы от использования новых технологий в современном окне из дерева очевидны. Перечислим их.
Преимущества деревянных стеклопакетов с форточкой.

На сегодняшний день российский рынок готов предложить конечному покупателю помимо, аналогичные изделия, но выполненные из дерева. Их достоинства, в сравнении со старыми деревянными окнами, еще советского образца, следующие:
- Комфортный режим проветривания. Даже при открытой настежь форточке, по помещению не будет ходить сильный сквозняк .
- Блокировка от самостоятельного открытия створки окна ребенком. За это отвечает специально предназначенная для этих целей фурнитура – ручка с замком от детей, запирающаяся при помощи небольшого ключика.
- Достаточное проветривание в условиях кухни. Настежь распахнутая створка окна на кухне является причиной сильного сквозняка, тогда как откинутая створка в полной мере может не справляться с выводом запаха из помещения. Форточка в этом случае представляет собой наиболее оптимальный вариант для комфортного, но в тоже время эффективного проветривания.
- Использование дополнительного пространства, выделенного под подоконник. Современное деревянное окно со стеклопакетом и форточкой, в отличие от старого советского, позволяет максимально использовать поверхность подоконника. Теперь места под посадку цветов и хранение фруктов стало еще больше.
Недостатки стеклопакетов из дерева с форточкой.

- Стоимость. Безусловно, цена на деревянное окно, в конструкцию которого включена форточка, по сравнению с обычным стеклопакетом из дерева, но без форточки, будет выше. Связано это с тем, что при изготовлении такого нестандартного окна , расходуется больше материалов и затрачивается большее количество человеко-часов.
- Уменьшение светопропускающей возможности оконной конструкции. Лишние перегородки на стекле, которые требуются для организации форточного проема, не лучшим образом отражаются на светопропускной возможности окна в целом – дневной свет, по сравнению с обычным деревянным стеклопакетом без форточки, поступает в помещение в меньшем количестве.

Как видно, минусы у светопропускающей конструкции из дерева с проемом для форточки есть, но их мало. Насколько критичными они будут относительно ваших персональных предпочтений – решать только вам.
Деревянные форточки. Разновидности и особенности конструкций рам
Видов конструкций множество. Они могут быть стандартными или выполняться под заказ, в зависимости от оконного проема. Но основных разновидностей несколько:

Разновидности и размеры оконных рам.
- Глухие оконные переплеты, которые не имеют возможности открываться. Для проникновения естественного света они располагаются, например, по глухой стене, вдоль которой построена лестница на 2 этаж.
- Открывающиеся. Количество движущихся створок может варьироваться от 1 до 3 и более, если размер оконного проема позволяет, а ширина створки будет не слишком узкая.
- Подъемные и раздвижные. Эти окна отличаются способом открывания и чаще всего располагаются в комнатах с определенным интерьером для поддержания стиля.
- Переплеты с установкой форточки. Причем форточек может быть несколько и обычно их количество определяется количеством створок окна.
Именно использование такого дополнительного элемента оконного переплета, как форточка, дает ряд преимуществ:
- Через открытую форточку холодный воздух, попадая в теплое помещение, не устремляется к потолку, в отличие от пластикового окна с поворотно-откидным механизмом. Благодаря этому в комнате происходит движение воздушных потоков, а сквозняки отсутствуют.
- Форточка не оказывает влияния на общие свойства оконного переплета, при этом увеличивает прочность и надежность конструкции окна за счет наличия распорки;
- У форточки значительно выше диапазон регулирования открытия на проветривание, значит, больше возможности влиять на поступление холодного воздуха внутрь комнаты. То есть, немного приоткрыв форточку на весь день, можно обеспечить свежим воздухом помещение на протяжении ночи, когда организм особенно восприимчив к сквознякам. При этом температура внутри помещения особых изменений не претерпит.
Кроме того, само размещение и крепление форточки внутри оконного переплета может быть различным. От того, как выполнено это крепление, будет зависеть и стоимость окна в целом, и его внешний вид.
Схема врезной форточки.
- Врезные. Такая модель форточки является частью единого каркаса оконного переплета и поэтому подгоняется максимально точно, не допуская зазоров. Подобное крепление считается наиболее надежным.
- Разрезные. Форточка собирается отдельно от окна, а затем, после разрезания одной из створок, просто вставляется в образовавшееся пространство. Крепление такой форточки осуществляется посредством накладных наружных петель.
- Скользящие. Такую форточку также изготавливают отдельно, однако крепят ее в специально приготовленные горизонтальные направляющие, которые прорезают в створке. Это наиболее сложная по исполнению и креплению конструкция форточки, делается она крайне редко. Скользящая форточка имеет очень необычный и привлекательный вид.
При самостоятельном изготовлении оконного переплета с форточкой чаще всего выбирают разрезную модель. Она наиболее проста в исполнении и креплении, особенно если навыков по изготовлению деревянного окна не слишком много. После того как этот навык наработается, можно приступать к изготовлению более сложных конструкций.
Деревянная форточка своими руками. Изготовление окон
Чтобы от начала и до конца изготовить окно из дерева своими руками,необходимо произвести следующие действия:
- Составление проекта;
- Изготовление и монтаж коробки;
- Изготовление оконной рамы;
- Установка и остекление рамы.
Ниже подробней ознакомимся со всеми этими этапами работы.

Пример схемы деревянного окна
Составление проекта
Прежде всего необходимо выполнить чертежи как сделать деревянное окно своими руками. Для этого надо определиться с размерами будущего изделия и его конструкцией. Соответственно, предварительно следует измерить оконный проем.
Чтобы правильно составить чертежи деревянных окон своими руками, можно ознакомиться с существующими проектами, и подобать из них наиболее оптимальный. В таком случае останется лишь подогнать размеры конструкции под оконные проемы здания.
В итоге выполненные чертежи окон своими руками из дерева должны отображать все детали изделия, а также их размеры, указанные обязательно в миллиметрах. Наличие такого проекта значительно упростит рабочий процесс, так как все нюансы конструкции будут у вас перед глазами. Соответственно, уменьшается вероятность допущения ошибок.
Ниже в качестве примера рассмотрим, как выполнить наиболее простую конструкцию – глухое деревянное окно своими руками.

Схема оконного короба
Изготовление короба
Короб является хоть и самым простым элементам окна, к его изготовлению нужно подходить очень ответственно, так как именно он принимает на себя всю нагрузку от окна. Для изготовления короба можно использовать лишь хорошо просушенные доски, без каких либо дефектов. Отличным вариантом являются сосновые доски, так как достаточно устойчивы к воздействию влаги.
Сделать форточку в пластиковом окне. Можно ли сделать форточку в пластиковом окне

Стремясь к максимальному комфорту, многие предпочитают модернизировать старые пластиковые окна. Одной из популярных услуг является монтаж форточек вместо привычного глухого стеклопакета. Последние нередко устанавливаются в целях экономии самими собственниками помещения, или застройщиками. Свои функции такое окно выполняет – защищает комнату от холода, осадков и шума. Но пользоваться им не очень удобно, особенно, если наступает необходимость вымыть стекла.
Если глухое окно вставлено в балконный блок, проветрить квартиру можно лишь при помощи открытой двери. Но эффективнее всего будет полностью заменить глухой стеклопакет на фрамугу или открывающуюся створку. Таким образом вы добавите удобства в свою жизнь и сможете избежать трат, связанных с полной заменой оконных или балконных систем.
Этапы монтажа форточки в окне ПВХ
Проведение замеров.
Заказ створки нужной конфигурации.
Демонтаж старого стеклопакета.
Установка новой конструкции.
Регулировка створки.
Изготовление самой конструкции обычно занимает около недели, а сам монтаж не более двух часов (при условии, что вы обратились к грамотному специалисту).
Какие окна можно оборудовать открывающимися стеклопакетами
Проще всего установить форточку на самую узкую часть окна. Одновременно с этим можно дополнительно утеплить модернизированную створку.
Верхние оконные рамы (фрамуги) также можно сделать распахивающимися. Они обеспечат оптимальный воздухообмен и безопасны для детей. Открывающиеся фрамуги могут иметь форму полукруга, многоугольника и т.д.
Монтаж поворотно-откидных фрамуг подходит для домов с большими оконными проемами и высокими потолками: в старом фонде, загородных особняках, апартаментах с нестандартной планировкой.
Большим спросом пользуется установка фрамуг в пластиковых горизонтальных окнах гаражей, кладовых и прочих подсобных помещений.
Варианты монтажа
Форточки могут открываться снизу или сверху, дополняться москитными сетками, дистанционным управлением. Опытные мастера быстро и качественно проведут монтаж подвижной фрамуги как в обычное вертикальное окно, так и в мансардное, находящееся под уклоном.
Как сделать форточку в глухом окне: простые шаги и советы
Если вы живете в квартире или доме с глухими окнами, но хотите обеспечить вентиляцию и свежий воздух в помещение, вы можете самостоятельно сделать форточку. Это несложно и не требует особых навыков – достаточно следовать пошаговой инструкции и использовать нужные инструменты.
Статья:
Глухое окно – это окно, которое не открывается и не имеет механизмов вентиляции. Такие окна, как правило, устанавливаются для теплоизоляции и звукоизоляции помещений, однако иногда они могут стать проблемой, особенно в жаркое время года, когда нужен свежий воздух. Но не стоит отчаиваться – сделать форточку в глухом окне можно самостоятельно. В этой статье мы расскажем, как это сделать.
Шаг 1: выбрать место для форточки
Первым шагом необходимо выбрать место, где будет располагаться форточка. Лучше всего выбирать место, где есть небольшой свободный участок окна, куда можно установить форточку. При этом не стоит выбирать места, близкие к батареям отопления, электроприборам и другим источникам тепла, чтобы не нарушать теплообмен в помещении.
Шаг 2: измерить размеры форточки
Следующим шагом нужно измерить ширину и высоту выбранного участка окна. Размеры форточки должны быть не менее 30х30 см, чтобы обеспечить достаточную вентиляцию в помещении.
Шаг 3: подготовить материалы и инструменты
Для изготовления форточки понадобятся: пила по металлу, линейка, металлические кусачки, шурупы, шуруповерт, ручка или держатель для форточки, москитная сетка и фанера толщиной около 1 см.
Шаг 4: вырезать отверстие и установить фанеру
После того, как выбрано место и измерены размеры форточки, можно приступать к работе. Сначала нужно вырезать отверстие в глухом окне, используя пилу по металлу. Затем нарежьте фанеру на нужный размер и зафиксируйте ее на месте, используя шурупы и шуруповерт.
Шаг 5: установить москитную сетку
Для того, чтобы защитить помещение от насекомых, необходимо установить москитную сетку на форточку. Она должна быть фиксирована на держателе с помощью шурупов и кусачек.
Шаг 6: установить ручку или держатель для форточки
Для того, чтобы было удобно открывать и закрывать форточку, можно установить ручку или держатель в нижней части фанеры. Это может быть простая пластиковая ручка или держатель, который будет прикреплен к фанере с помощью шурупов.
Таким образом, сделать форточку в глухом окне – это несложно и не требует особых умений. Она обеспечит вентиляцию помещения и защитит от насекомых. Главное – следовать пошаговой инструкции и не забывать про меры безопасности: работать в перчатках и защитных очках, а также держать острые инструменты подальше от детей и животных.
Как сделать форточку в глухом окне: простые шаги и советы
Если вы живете в квартире или доме с глухими окнами, но хотите обеспечить вентиляцию и свежий воздух в помещение, вы можете самостоятельно сделать форточку. Это несложно и не требует особых навыков – достаточно следовать пошаговой инструкции и использовать нужные инструменты.
Шаг 1: выбрать место для форточки
Первым шагом необходимо выбрать место, где будет располагаться форточка. Лучше всего выбирать место, где есть небольшой свободный участок окна, куда можно установить форточку. При этом не стоит выбирать места, близкие к батареям отопления, электроприборам и другим источникам тепла, чтобы не нарушать теплообмен в помещении.
Шаг 2: измерить размеры форточки
Следующим шагом нужно измерить ширину и высоту выбранного участка окна. Размеры форточки должны быть не менее 30х30 см, чтобы обеспечить достаточную вентиляцию в помещении.
Шаг 3: подготовить материалы и инструменты
Для изготовления форточки понадобятся:
- Пила по металлу
- Линейка
- Металлические кусачки
- Шурупы
- Шуруповерт
- Ручка или держатель для форточки
- Москитная сетка
- Фанера толщиной около 1 см
Следующий шаг – изготовление форточки. Мы будем описывать процесс в следующей статье.
Установка форточки в пластиковое окно. Сделать_форточку_в_пластиковом_окне_после_установки
Мастера, подскажите можно ли сделать форточку в ранее установленном пластиковом окне без форточки самостоятельно?
Самостоятельно нет, а вот при помощи фирмы-оконщиков проделывал такой фокус. Вынимался стеклопакет, в оставшуюся раму вставлялось НОВОЕ ОТКРЫВАЮЩЕЕСЯ ОКНО (называйте как хотите -форточка). Таким образом, просвет окна конечно уменьшался, но конструкция работает уже по 3-5 лет. Очень важно, что окно выполнялось индивидуально под размер вынятого стеклопакета, стыки закрывались пластиком, внутри (между рамами) запенивалось.
Если пластиковое окно установлено, то в ней своими руками форточку уже не установить. Хотя модернизацию окна можно сделать, но только руками специалистов — заменить установленный глухой стеклопакет на вновь заказанный, но уже с форточкой.
Некоторые мастера изготавливают форточку своими руками, но только гарантия на герметичность «рама-створка» под сомнением. Ставят импост, меняют стеклопакет и штапики, делается форточка по необходимым размерам и устанавливается в получившуюся раму. Важно знать марку профиля.
Но лучше или отказаться от затеи делать самостоятельно форточку в установленном стеклопакете или заказать в проверенной фирме новый вариант его.

Если Вы имеете в виду окно с глухим стеклопакетом, то форточку установить можно, но не самостоятельно.
Своими руками просто без вариантов.
Чаще всего приходится изготавливать створку + форточка над ней и там и там новые стеклопакеты.
Работа чрезвычайно дорогая и по стоимости приравнивается к цене не дорогого «глухого» (без створок) окна.
Лучше ещё раз всё просчитать, возможно дешевле (или не намного дороже) заказать новое окно уже с форточкой.
Если на Вашем окне есть створка, то форточка практически не нужна.
Сама створка работает форточкой (несколько режимов проветривания).!
Если решили заказать изготовление форточки, то первый шаг это замеры (выполняет та же компания что и будет изготавливать форточку).
По снятым размерам изготовят створку и форточку.
Далее демонтаж старого стеклопакета (глухого, который не открывается никак).
И далее уже монтаж створки, форточки, настройка и.т.д.
Полностью окно демонтировать не будут, все работы по установки форточки выполняются по месту.
Модернизация окон / Замена поворотной створки на поворотно-откидную
В последнее время все большую популярность приобретает услуга установка форточек вместо глухого стеклопакета. Это обусловлено повышением требований к комфорту. Наш дом – наша крепость, поэтому в жилище все должно быть обустроено максимально удобно и функционально.
Глухое (неоткрывающееся) окно

Открывающаяся створка вместо стеклопакета
Окна с глухими стеклопакетами нередко устанавливаются в целях экономии. Чаще всего такая экономия практикуется в новостройках, однако в процессе эксплуатации глухое окно не всегда удобно. Так, внешняя сторона стеклопакета автоматически становится труднодоступной для очистки.
Этапы установки форточек/створок

Шаг 1. Замер и изготовление створки

Шаг 2. Демонтаж глухого (неоткрывающегося) стеклопакета

Шаг 3. Монтаж створки
Шаг 4. Регулировка
Шаг 5. Сдача работы Установка форточки происходит на месте заказа.
Переделать в открывающиеся можно также фрамуги – верхние оконные рамы. Такие конструкции безопасны для детей и позволяют проветривать помещение без сквозняков: холодный воздух, опускаясь, постепенно прогревается. Фрамуги бывают в форме арки, трапеции, многоугольника и т.д.
Чаще всего фрамуги встречаются в окнах более 1,7 м. Как правило, это дома с высокими потолками и большими проемами.
Фрамуги могут открываться как сверху, так и снизу. Они наиболее распространены в виде отдельных пластиковых открывающихся горизонтальных окон подсобных помещений – гаражей, кладовок. В такие изделия можно устанавливать москитные сетки.
Установить фрамугу или форточку можно как в простое вертикальное окно, так и в окно на крыше под уклоном. Для открытия подобных конструкций существует ручка дистанционного открывания, которую можно расположить на любой высоте.
Изготовление форточки или фрамуги производится в течение 6 рабочих дней после замера. Установка и регулировка займет не более 2 часов.
Примеры выполненных работ:
Современные пластиковые окна – это полностью готовый к использованию продукт, который не нужно дорабатывать напильником, чтобы добиться удобства и практичности.
Но, как и в случае со многими другими вещами, окна практически всегда реализуются в минимальной комплектации. А значит, их можно и нужно усовершенствовать.
Об основных способах усовершенствования (модернизации) мы и поговорим в данной статье. Но оговоримся сразу, далеко не все из них однозначно полезны, однако спорить на данную тему можно бесконечно – любое мнение будет субъективным.
Как врезать форточку в окно. Завершение рабочего процесса
Установка форточки с помощью наружного стекла.
Далее при помощи дрели и сверла по дереву высверливают среднюю часть, тем самым образуя паз с одной округлой стороной. Чтобы соединение было плотным, шип необходимо скруглить. На горбыльке делают шип, а на фрамуге (части, которая разделяет створки) и на одной из вертикальных стоек рамы выбирают проушину. При этом необходимо проушины располагать симметрично и по размерам, указанным на чертеже. Для такой проушины можно использовать дрель и сверло, а шип подогнать под полученный паз.
Кроме того, допускается выполнение сквозной проушины для крепления горбылька. Аналогично с креплением на шип выполняют форточку.
После того как все детали будут готовы, можно приступать к сборке. Сначала выполняют сухую сборку (без клея). При необходимости выполняют подгонку, а затем склеивают. Дополнительно, для усиления крепления, можно на углах рамы и форточке прикрутить уголки. Форточку навешивают на петли. После этого можно приступать к пропитке и покраске окна.
Зачастую в квартирах советского времени установлены оконные блоки с узкой створкой, которая по замыслу проектировщиков предназначена для выполнения функции форточки. Однако, ее не всегда удобно открывать, поэтому многих домашних мастеров нужда заставляет делать форточку самостоятельно.
Кроме того, потребность в ее изготовлении может возникнуть в «глухих» оконных переплетах старых частных домов.
Деревянное окно с форточкой
Чтобы помочь в этом вопросе, далее мы рассмотрим, как сделать форточку в деревянной раме самостоятельно.