Профиль slidors плюсы и минусы. Почему slidors подходит для России
Профиль slidors плюсы и минусы. Почему slidors подходит для России
Slidors – это раздвижной профиль из пластика эконом-класса. Чтобы было понятнее, он нечто среднее по качеству и характеристикам между пластиковым профилем КВЕ и алюминиевым профилем provedal. То есть легче первого и теплее второго. Правда, есть у него и минус. Он недостаточно теплый для квартиры или офиса, ведь относится к холодно-теплому остеклению. Поэтому им остекляют нежилые помещения, в том числе – балконы и лоджии.
О других бюджетных вариантах остекления читайте в обзоре: Как остеклить окно недорого?
В материале «Остекление холодными профилями» вы подробнее узнаете о теплозащитных свойствах профиля Slidors. А также: какие еще профили относят к холодному остеклению и сколько они стоят.
Если вы собираетесь остеклять балкон в первый раз, возможно, вам потребуется разрешение. В каких случаях его нужно получать и куда для этого обращаться, смотрите по ссылке: http://oknanagoda.com/balkony-lodzhii/yuridicheskie-voprosy/razresheniye-na-ostekleniye.html
Однако, когда Slidors прибыл к нам из Южной Кореи, он буквально сразу полюбился россиянам. И вот почему.
Преимущества профиля slidors:
>1. Как и любой профиль, он защитит ваш балкон от шума, грязи и пыли. Однако сделает это лучше алюминиевого. Причина тому – щеточные уплотнения с дополнительной пластиковой прокладкой, которые устанавливаются между секцией и профилем с двух сторон.>2. Другая особенность профиля Слайдорс в том, что он подойдет абсолютно для любого окна на вашем балконе – будь оно 2 метра в высоту или овальной формы. Из всех профилей только этот способен на подобные «фокусы».
 
- Slidors используют для остекления беседок, веранд и т.д.
 
- Пластиковый профиль Slidors выглядит симпатичнее алюминиевого профиля
 
- У Slidors бывают створки даже таких внушительных размеров
>3. Еще один плюс системы в том, что створки могут раздвигаться в любом порядке. При этом несколько из них вы можете сделать статичными. А еще, благодаря уникальному раздвижному механизму, окна не заледенеют даже в самый жуткий мороз. И вы без труда их откроете.>4. Slidors защитит ваш дом от воров и комаров. Надежный серповидный замок и филингпис (пластиковый элемент между створками) помешают проникнуть внутрь взломщикам, а москитная сетка – комарам. Это еще не все: москитная сетка свободно передвигается по всей площади окна по дополнительному рельсу.>5. Профиль, при желании, ламинируют цветной пленкой. Поэтому, если по внешнему виду вам больше нравится дерево, вы можете взять slidors с древесным цветом – получится так же красиво, но дешевле.>6. Пластиковые профили в сравнении с алюминиевыми всегда лучше защищают от холода.
Раздвижное остекление слайдорс. Технические характеристики системы
Slidors — раздвижная система, функционирующая по принципу конструкций купейного типа. К оконным створкам прикреплены роликовые направляющие, по которым блоки плавно перемещаются.
Конструктивное решение Слайдорс включает:
- пластиковый профиль с 3 рамами с высокими шумозащитными характеристиками;
- каркас рамы с плоскими поверхностями;
- добавочный накладной роликовый рельс (требуется для крепления москитной сетки);
- замок серповидной формы, совмещающий функции ручки, обеспечивающий взломобезопасность лоджии, прочно фиксирующий оконный блок, предотвращая случайное открытие;
- систему рельсов с округлым сечением;
- щеточные уплотняющие вставки.
Система Slidors обеспечивает полутеплое остекление. Конструктивная толщина профиля составляет 58-70 мм. Параметры звукоизоляции изделий достигают 46 Дб (характеристики выше алюминиевых конструкций). Створки комплектуются стеклом (3-5 мм) либо стеклопакетом (14-18 мм).
Использование стеклопакета позволяет снизить потери тепла в 3-3,5 раза. Возможно использование энергоэффективных, тонированных, многофункциональных, ударопрочных, шумозащитных стекол.
Профиль универсален, выгодное теплое остекление может состыковываться с другими профильными системами в 58 и 60 мм. Изделия Слайдорс отличаются расширенным световым проемом, конструктивным решением предусмотрен повышенный коэффициент остекления.
Продукция для остекления балконов и лоджий поставляется на участок в разобранном виде, обеспечивает легкую транспортировку, не деформируется при перемещении.
Большая высота роликовых рельс предотвращает примерзание и намокание створок. Закругленная конфигурация рельс обеспечивает быстрое и ровное скольжение блоков.
Высота створок может варьироваться (550-1830 мм). Ширина со стеклопакетом по размерам составляет 500-850 мм.
Окна слайдер калининград. Пластиковые окна по низким ценам

Изготовление окон— сложный технологический процесс, соблюдение которого обеспечивает высокую шумо- и теплоизоляцию в помещении. Наша компания уже более 10 лет производит качественные оконные профили для стеклопакетов из трех и пяти контуров, а также занимается выпуском пластиковых дверей , перегородок , изготовлением москитных сеток .
Собственное производство окон в Калининграде, позволяет контролировать процесс изготовления продукции, выполнять заказы на окна с нестандартными размерами и формой, а также гарантировать долговечность и прочность созданных изделий. Мы гордимся своими работами.
Пластиковые окна от производителя
- Купить пластиковые окна — значит, утеплить и преобразить любую комнату или офисное помещение. Изготовим и установим под ключ глухие, поворотно-откидные, распашные, раздвижные, арочные, эркерные, слуховые и другие оконные конструкции.
- За счет собственного производства окон у нас отсутствует накрутка цен . Сотрудничая с нами, не придется отдавать по 30% от реальной стоимости стеклопакета за посредничество при оформлении сделки, как это принято в дилерских центрах.
- При этом мы гарантируем качество конструкций из надежного пластика. До поставки клиенту проверяем каждую модель до 5 раз на соответствие всем требованиям безопасности.
- Возможность заказа пластиковых окон напрямую от производителя подразумевает, что клиент может выбрать помимо традиционно белого серый, красный и синий цвет профиля, а также оттенки «махагон» и «дуб» (золотой, мореный и темный).
Стоимость
Окно двустворчатое 1300х1400 мм. с установкой и отделкой — от 13000 руб.
Окно трехстворчатое 1400х2050мм — от 16000 руб.
Цветные окна — от 3600 руб.
Как сделать заказ в компании «Уютные окна»
Заказать окна ПВХ — просто. Для этого:
- свяжитесь с нами по указанным в шапке сайта телефонным номерам;
- закажите обратный звонок (наш сотрудник сам перезвонит вам в удобное для вас время);
- зайдите в наш офис по адресу ул. Дзержинского, 198 а;
- оформите заявку на просчет или вызов замерщика прямо на сайте, воспользовавшись одной из форм.
После обращения к вам бесплатно приедет специалист для снятия точных мерок и обсуждения нюансов работы. По любым возникающим вопросам звоните — будем рады помочь!
Узнайте стоимость установки окон прямо сейчас!
Балкон слайдер. Пластиковый профиль slidors (слайдорс) — особенности конструкции и монтажа

Остекление балконов довольно сложная процедура, которая часто сопровождается утеплением и отделкой помещения. Сложность состоит и в выборе пластикового профиля. Ведь хочется, чтоб он был легким, прочным, теплосберегающим и с низкой стоимостью. Но бывает ли такое?
Бывает. Этим критериям соответствует пластиковый профиль Slidors. К тому же он не требует свободного места для открытия окна.
Преимущества профиля Slidors
В конце 90-х годов на российском рынке появилась корейская компания Slidors, специализирующаяся на производстве высококачественных профилей ПВХ. Россияне сразу полюбили её. И в этом кроется несколько причин.
Слайдорс является раздвижным пластиковым профилем эконом-класса. При этом он обладает хорошим качеством. Единственный его недостаток в том, что относится к смешанному типу остекления. Для жилых помещений он не подходит, а для балконов и лоджий, как раз то, что надо.

Изготавливаются окна Slidors из экологически безопасного поливинилхлорида. Они являются прочными, легкими по сравнению с пластиковым профилем КВЕ и теплыми, в отличии от алюминиевого профиля Provedal.
Данная профильная система проста в использовании, хотя имеет сложное устройство. Фурнитура, поставляемая российскими производителями, препятствует проникновению холода в помещение, поскольку створки плотно прилегают к окну. Также герметичность остекления Slidors защищает от атмосферных осадков, шума и пыли, о чем говорят многочисленные отзывы покупателей.

Slidors профиль постоянно усовершенствуется. Сейчас выпускают стеклопакеты с теплосберегающим покрытием. Оно не выпускает тепло с помещения и в жаркую погоду не пропускает солнечные лучи вовнутрь , таким образом, экономит зимой на отоплении, и создает прохладу летом.
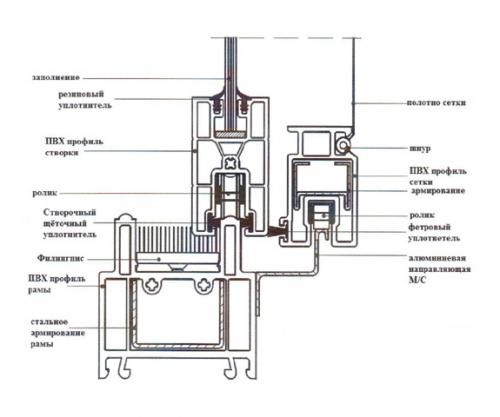
В отличии от профиля из алюминия , в Slidors устанавливаются щеточные уплотнения, которые имеют пластиковую прокладку. Находятся они с двух сторон между створкой и профилем.
Слайдорс – единственная профильная система, которая подходит для балконного окна с любым размером и формой.
Что касается раздвижных систем, то они не замерзают в сильные морозы и вы, не прилагая особых усилий, откроете окно. Сам механизм может иметь и нераздвижные створки, при этом раздвижные будут открываться наиболее удобным для вас способом. Что является очередным преимуществом.
Профиль слайдорс оснащен защитным замком в виде серпа и пластиковой деталью – филингписом, которые не дадут ни малейшей возможности проникнуть в дом нежеланным гостям. От комаров защитит свободно передвигающаяся по всей площади окна москитная сетка . Для нее предназначены отдельные рельсы.

Москитная сетка на раздвижные окна Слайдорс
Окна пластиковые слайдорс подойдут в любой интерьер помещения, поскольку их можно заламинировать пленкой необходимого цвета и текстуры, например дерева. А значит можно сэкономить на деревянных окнах, а вид останется таким же привлекательным.
Устройство профиля Slidors
Выше уже отмечалось, что Slidors – профиль очень прочный. Секрет состоит в пластиковой конструкции, в которую вставляется металлический каркас. Таким образом, укрепленный металлом профиль стойкий к сильным порывам ветра и физическим нагрузкам.

Конструкция пластикового профиля Slidors
Раздвижная система Slidors сделана по принципу шкафа-купе, то есть к створкам прикреплены ролики, которые передвигаются по направляющим.
Стеклопакет может быть одинарным шириной 14 мм, а можно установить одно стекло толщиной до 6 мм. Конечно, лучше остановить свой выбор на стеклопакете. Он создаст более уютную и комфортную атмосферу, поскольку снижает теплопотери в 3-3,5 раза.





