Профиль slidors раздвижная система. Технические характеристики системы
Профиль slidors раздвижная система. Технические характеристики системы
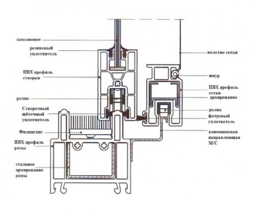
Slidors — раздвижная система, функционирующая по принципу конструкций купейного типа. К оконным створкам прикреплены роликовые направляющие, по которым блоки плавно перемещаются.
Конструктивное решение Слайдорс включает:
- пластиковый профиль с 3 рамами с высокими шумозащитными характеристиками;
- каркас рамы с плоскими поверхностями;
- добавочный накладной роликовый рельс (требуется для крепления москитной сетки);
- замок серповидной формы, совмещающий функции ручки, обеспечивающий взломобезопасность лоджии, прочно фиксирующий оконный блок, предотвращая случайное открытие;
- систему рельсов с округлым сечением;
- щеточные уплотняющие вставки.
Система Slidors обеспечивает полутеплое остекление. Конструктивная толщина профиля составляет 58-70 мм. Параметры звукоизоляции изделий достигают 46 Дб (характеристики выше алюминиевых конструкций). Створки комплектуются стеклом (3-5 мм) либо стеклопакетом (14-18 мм).
Использование стеклопакета позволяет снизить потери тепла в 3-3,5 раза. Возможно использование энергоэффективных, тонированных, многофункциональных, ударопрочных, шумозащитных стекол.
Профиль универсален, выгодное теплое остекление может состыковываться с другими профильными системами в 58 и 60 мм. Изделия Слайдорс отличаются расширенным световым проемом, конструктивным решением предусмотрен повышенный коэффициент остекления.
Продукция для остекления балконов и лоджий поставляется на участок в разобранном виде, обеспечивает легкую транспортировку, не деформируется при перемещении.
Большая высота роликовых рельс предотвращает примерзание и намокание створок. Закругленная конфигурация рельс обеспечивает быстрое и ровное скольжение блоков.
Высота створок может варьироваться (550-1830 мм). Ширина со стеклопакетом по размерам составляет 500-850 мм.
Slidors недостатки. Пластиковый профиль slidors (слайдорс) — особенности конструкции и монтажа

Остекление балконов довольно сложная процедура, которая часто сопровождается утеплением и отделкой помещения. Сложность состоит и в выборе пластикового профиля. Ведь хочется, чтоб он был легким, прочным, теплосберегающим и с низкой стоимостью. Но бывает ли такое?
Бывает. Этим критериям соответствует пластиковый профиль Slidors. К тому же он не требует свободного места для открытия окна.
Преимущества профиля Slidors
В конце 90-х годов на российском рынке появилась корейская компания Slidors, специализирующаяся на производстве высококачественных профилей ПВХ. Россияне сразу полюбили её. И в этом кроется несколько причин.
Слайдорс является раздвижным пластиковым профилем эконом-класса. При этом он обладает хорошим качеством. Единственный его недостаток в том, что относится к смешанному типу остекления. Для жилых помещений он не подходит, а для балконов и лоджий, как раз то, что надо.

Изготавливаются окна Slidors из экологически безопасного поливинилхлорида. Они являются прочными, легкими по сравнению с пластиковым профилем КВЕ и теплыми, в отличии от алюминиевого профиля Provedal.
Данная профильная система проста в использовании, хотя имеет сложное устройство. Фурнитура, поставляемая российскими производителями, препятствует проникновению холода в помещение, поскольку створки плотно прилегают к окну. Также герметичность остекления Slidors защищает от атмосферных осадков, шума и пыли, о чем говорят многочисленные отзывы покупателей.

Slidors профиль постоянно усовершенствуется. Сейчас выпускают стеклопакеты с теплосберегающим покрытием. Оно не выпускает тепло с помещения и в жаркую погоду не пропускает солнечные лучи вовнутрь , таким образом, экономит зимой на отоплении, и создает прохладу летом.
В отличии от профиля из алюминия , в Slidors устанавливаются щеточные уплотнения, которые имеют пластиковую прокладку. Находятся они с двух сторон между створкой и профилем.
Слайдорс – единственная профильная система, которая подходит для балконного окна с любым размером и формой.
Что касается раздвижных систем, то они не замерзают в сильные морозы и вы, не прилагая особых усилий, откроете окно. Сам механизм может иметь и нераздвижные створки, при этом раздвижные будут открываться наиболее удобным для вас способом. Что является очередным преимуществом.
Профиль слайдорс оснащен защитным замком в виде серпа и пластиковой деталью – филингписом, которые не дадут ни малейшей возможности проникнуть в дом нежеланным гостям. От комаров защитит свободно передвигающаяся по всей площади окна москитная сетка . Для нее предназначены отдельные рельсы.

Москитная сетка на раздвижные окна Слайдорс
Окна пластиковые слайдорс подойдут в любой интерьер помещения, поскольку их можно заламинировать пленкой необходимого цвета и текстуры, например дерева. А значит можно сэкономить на деревянных окнах, а вид останется таким же привлекательным.
Устройство профиля Slidors
Выше уже отмечалось, что Slidors – профиль очень прочный. Секрет состоит в пластиковой конструкции, в которую вставляется металлический каркас. Таким образом, укрепленный металлом профиль стойкий к сильным порывам ветра и физическим нагрузкам.

Конструкция пластикового профиля Slidors
Раздвижная система Slidors сделана по принципу шкафа-купе, то есть к створкам прикреплены ролики, которые передвигаются по направляющим.
Стеклопакет может быть одинарным шириной 14 мм, а можно установить одно стекло толщиной до 6 мм. Конечно, лучше остановить свой выбор на стеклопакете. Он создаст более уютную и комфортную атмосферу, поскольку снижает теплопотери в 3-3,5 раза.



Раздвижное остекление Слайдорс. Разница между Проведал и Слайдорс
В течение длительного времени на строительном рынке возрастающей популярностью пользуется остекление Provedal и Slidors. По многих параметрам профильные системы имеют схожие характеристики. Чтобы выбрать оптимальный вариант остекления, рекомендуется ознакомиться с отличиями, внимательно изучить положительные и отрицательные стороны.
Конфигурация заготовок предоставляет возможность комплектовать изделия стеклопакетами различной толщины. В окнах раздвижнойвыполняет защитную функцию, предотвращают попадание пыли, образование сквозняков. Алюминиевый профиль, используемый при холодном остеклении, отличается легким весом, прочностью, устойчивостью к воздействию внешних факторов.
Сравнение профилей по эксплуатационным и техническим характеристикам
| Параметры | Slidors | Provedal |
| Поливинилхлорид (ПВХ) | Алюминий | |
| Толщина, мм | 58, 60, 70 | 60 |
| Тип остекления | Теплое | Холодное |
| Остекление | Одинарное стекло, 1-камерный пакет | Стекло 4 мм |
| Изоляция тепла | Высокий показатель сопротивления теплоотдаче | Наличие «мостов холода» |
| Функциональность | Возможность открывания в зимнее время | Блокировка при низких температурах |
| Коэффициент сопротивления теплопередаче, м2С/Вт | 0,15 | 0,07 |
| Надежность | Отсутствие промерзания створок | Возможно промерзание уплотнителей, створок |
| Защищенность | Фурнитура функционирует при любой температуре | Замки могут промерзать |
| Возможности | Комбинирование с распашными профилями, изготовление арок | Использование эркерных соединений |
| Универсальность | Возможность подобрать москитные сетки, фурнитуру других брендов | Комплектуется оригинальными деталями |
| Удобство эксплуатации | Эргономичность раздвижной конструкции |
Проведал – популярная система, разработанная в Испании с учетом особенностей климата средней полосы, комбинирует глухие, раздвижные и поворотные элементы. В системе Слайдорс внедрены новые технологические разработки, позволяющие адаптировать окна для суровых климатических условий.
Конструкции, которые оснащены внутренним армированием для повышения прочности, изготовляются из поливинилхлорида (ПВХ). Система предусматривает установку стеклопакета, что обеспечивает отличную изоляцию звука и тепла.
При установке Слайдорс Панорама применяется 3-камерный профиль, прочность которого обеспечивается за счет армирования. Рамные углы позволяют доставлять конструкцию в разобранном виде. Закругление рельса обеспечивает плавное скольжение, а замки специальной конфигурации препятствуют несанкционированному снятию створки.
Главные отличия Проведал от Слайдорс заключаются в типе систем. Холодный металлический профиль способен деформироваться при резких перепадах температуры. Поливинилхлорид устойчив к воздействию холода и тепла.
Алюминиевые конструкции характеризуются экономичностью, а ПВХ – практичностью и функциональностью, хотя многие эксперты считают более прочными металлические системы.