Вертикально раздвижные пластиковые окна. Вертикально-раздвижные окна: что собой представляют, как устроены, преимущества
- Вертикально раздвижные пластиковые окна. Вертикально-раздвижные окна: что собой представляют, как устроены, преимущества
- Окна слайдеры горизонтальные. Преимущества профиля Slidors
- Пластиковые окна с горизонтальным открыванием. Способы открывания сдвижной конструкции
- Сдвижные окна. Типы раздвижных окон
- Вертикально раздвижные окна. Преимущества и недостатки раздвижных окон
Вертикально раздвижные пластиковые окна. Вертикально-раздвижные окна: что собой представляют, как устроены, преимущества
Вертикально-раздвижные окна – светопрозрачные конструкции со створкой, которая сдвигается вверх, фиксируется, а также без проблем возвращается в исходное положение.
Вертикально-скользящие оконные системы пришли к нам из Англии, там они появились в XVII веке. Со временем конструкция модернизировалась, улучшалась.
Сегодня представляют собой функциональные и удобные окна.
Отличная альтернатива традиционным распашным оконным системам.
Из каких элементов состоят
В английских окнах, чтобы проветрить комнату, мы сдвигаем створку вверх. В таком положении она фиксируется.
Чтобы закрыть окно, опускаем створку, не прикладывая больших усилий, легким движением руки. При этом секция сдвигается плавно. За скольжение отвечают роликовые механизмы, которые движутся по специальным направляющим.
Кроме створок, роликов и направляющих, английские окна включают:
- Стеклопакет;
- Запорные механизмы;
- Фиксаторы, удерживающие секцию в нужном положении.
Современные вертикально-раздвижные окна предполагают стеклопакеты из двух, трех стекол. Они могут быть многослойными ударостойкими (триплекс), энергосберегающими (с металлическим напылением), шумоизоляционными.
Основа вертикально-скользящей оконной конструкции, как и обычной распашной, - профильная система.
Материал профильных систем
Профили составляют основу, раму окна.
В вертикальных раздвижных окнах профильные системы могут быть пластиковыми (ПВХ), деревянными (из клееного бруса), алюминиевыми.
Системы ПВХ достаточно распространены. Они прочные, долговечные, изящные. Устойчивые к влаге и низким температурам.
Окна с каркасом из клееного бруса, как правило, дороже пластиковых. Презентабельные, элегантные, идеально сочетаются с деревянными домами.
Алюминиевые системы легкие, высокопрочные. Однако подходят лишь для неотапливаемых помещений (например, балконов, лоджий): плохо сохраняют тепло.
Преимущества раздвижных окон
Вертикально-раздвижные светопропускающие конструкции, когда их ставишь на проветривание, не занимают пространство в пределах подоконника: в них нет классических поворотных створок. Поэтому позволяют использовать подоконную доску как полочку.
В сдвижных окнах из профилей Energy Core удобно мыть стеклопакеты. Створки не только движутся по вертикальным направляющим, но и поворачиваются относительно горизонтальной оси, упрощая мытье стекол с наружной стороны.
Другие плюсы:
- Необычная конструкция, которая выделяется на фоне других;
- Комфортное проветривание;
- Возможность установить как в кирпичном, панельном, так и деревянном доме;
- Наличие сразу двух скользящих секций.
Стоимость готового окна английского типа – от 11 900 рублей. Цена в основном зависит от ширины, высоты конструкции, типа профильной системы, стеклопакета.
Окна слайдеры горизонтальные. Преимущества профиля Slidors
В конце 90-х годов на российском рынке появилась корейская компания Slidors, специализирующаяся на производстве высококачественных профилей ПВХ. Россияне сразу полюбили её. И в этом кроется несколько причин.
Слайдорс является раздвижным пластиковым профилем эконом-класса. При этом он обладает хорошим качеством. Единственный его недостаток в том, что относится к смешанному типу остекления. Для жилых помещений он не подходит, а для балконов и лоджий, как раз то, что надо.

Изготавливаются окна Slidors из экологически безопасного поливинилхлорида. Они являются прочными, легкими по сравнению с пластиковым профилем КВЕ и теплыми, в отличии от алюминиевого профиля Provedal.
Данная профильная система проста в использовании, хотя имеет сложное устройство. Фурнитура, поставляемая российскими производителями, препятствует проникновению холода в помещение, поскольку створки плотно прилегают к окну. Также герметичность остекления Slidors защищает от атмосферных осадков, шума и пыли, о чем говорят многочисленные отзывы покупателей.

Slidors профиль постоянно усовершенствуется. Сейчас выпускают стеклопакеты с теплосберегающим покрытием. Оно не выпускает тепло с помещения и в жаркую погоду не пропускает солнечные лучи вовнутрь , таким образом, экономит зимой на отоплении, и создает прохладу летом.
В отличии от профиля из алюминия , в Slidors устанавливаются щеточные уплотнения, которые имеют пластиковую прокладку. Находятся они с двух сторон между створкой и профилем.
Слайдорс – единственная профильная система, которая подходит для балконного окна с любым размером и формой.
Что касается раздвижных систем, то они не замерзают в сильные морозы и вы, не прилагая особых усилий, откроете окно. Сам механизм может иметь и нераздвижные створки, при этом раздвижные будут открываться наиболее удобным для вас способом. Что является очередным преимуществом.
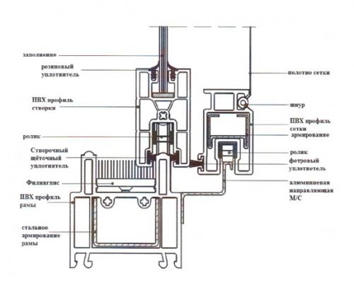
Профиль слайдорс оснащен защитным замком в виде серпа и пластиковой деталью – филингписом, которые не дадут ни малейшей возможности проникнуть в дом нежеланным гостям. От комаров защитит свободно передвигающаяся по всей площади окна москитная сетка . Для нее предназначены отдельные рельсы.

Москитная сетка на раздвижные окна Слайдорс
Окна пластиковые слайдорс подойдут в любой интерьер помещения, поскольку их можно заламинировать пленкой необходимого цвета и текстуры, например дерева. А значит можно сэкономить на деревянных окнах, а вид останется таким же привлекательным.
Пластиковые окна с горизонтальным открыванием. Способы открывания сдвижной конструкции
Сдвижные окна ПВХ отличаются от обычных способностью открываться в той же плоскости, в которой они установлены. Створка может отодвигаться в левую-правую сторону либо же двигаться вверх-вниз, также некоторые конструкции могут быть оборудованы поворотно-откидным механизмом, позволяющим устанавливать створку в режим проветривания. Такой же имеется у простого распашного окна. Щель для проветривания можно регулировать, устанавливая на нужную ширину.
Створки сдвижного типа применимы для помещений, пространство которых ограничено. Такое окно не требует места для открывания, поэтому не будет мешать распахнутой створкой. Чаще всего к окнам вплотную не ставят никаких предметов интерьера, поэтому добраться до них будет несложно. Так как створка не выходит за пределы оконного проема, пользоваться стеной можно без ограничений. Вам не потребуется оставлять на ней пространство для открывания створки.

В раздвижных окнах створки могут открываться горизонтально и вертикально.
Сдвижные окна ПВХ мало чем отличаются внешне от обычных пластиковых окон, поэтому переживать за резкие изменения интерьера вам не придется. Для того чтобы окно герметично закрывалось, был придуман следующий способ открывания: створка при помощи ручки поворачивается, как в автобусе, и выходит из плоскости, в которой установлена, таким образом оказываясь поверх рамы, после этого ее можно по направляющей сдвинуть в нужную сторону. Такая система несколько сложнее привычных раздвижных конструкций для балконов, но она имеет и ряд преимуществ в виде высокой герметичности, способности удерживать тепло, изолировать шум с улицы.

Вертикально-подъемное окно в загородном доме.
Выбрали для остекления балкона алюминиевый профиль? Читайте нашу статью « Раздвижные окна из алюминия — преимущества, конструктивные особенности и монтаж»
В чес преимущество раздвижных окон и дверей для частных домов и квартир читайте в нашем материале на сайте.
Сдвижные окна. Типы раздвижных окон
На сегодняшний день существует несколько разных типов раздвижных конструкций. Различаются они по самым разным параметрам: материалу профиля, набора функций, шириной профиля, степенью теплоизоляции, типом механизма открывания. Начнем с последнего параметра. Механизмы открывания раздвижных окон делятся на:
- Параллельно-сдвижной. Сверху и снизу на раме есть направляющие — на них устанавливают специально сделанные на створке пазы. Тут обычно применяется ручка с защелкой и щеточные уплотнители. Обычно такие конструкции делают из алюминия, но можно выполнить и из ПВХ.
- Наклонно-сдвижной. При остеклении окон раздвижная система такого типа более сложная, зато и более универсальная. На раме устанавливают несколько соединенных роликами направляющих и обвязка фурнитуры. Открываются такие окна путем поворота ручки: створка при этом двигается внутрь балкона. Несомненный плюс такого механизма — окно можно открывать на проветривание. Основным материалом может служить алюминиевый профиль, пластик и даже древесина.
Второй вариант, хотя и является более сложным, считается более удачным и функциональным. Он обеспечивает лучшую степень изоляции, более надежен и долговечен. Однако в вопросе изоляции больше внимания следует не механизму открывания, а материалу, из которого изготовлена рама. Об этом и будет написано ниже.
Алюминиевые раздвижные окна
Несмотря на то, что алюминий чаще всего связывают с холодным остеклением, в вопросе изготовления раздвижных систем существуют такие понятия как «теплый» и «холодный» алюминий.
«Холодный» вариант не подразумевает наличие специальной теплоизоляционной перемычки. При таком способе теплоизоляция будет довольно низкой, а температура на балконе будет превышать уличную всего на несколько градусов. Такой тип профиля используется, если помещение не предполагают делать дополнительной комнатой для проведения досуга.
В «теплых» алюминиевых системах эта перемычка есть, за счет чего значительно повышаются теплоизоляционные свойства. А если используются еще и энергосберегающие стеклопакеты, то такие окна ничем не будут уступать пластиковым или деревянным.
Алюминиевые конструкции раздвижного типа выполняются по индивидуальному заказу, так что их можно использовать для балконов и лоджий любого типа и размера. Такое остекление будет легким, прочным, надежным. Первый пункт особенно важен, если речь идет о старом доме с ветхими плитами основания — под тяжелой конструкцией такая плита может попросту рухнуть.
Такая раздвижная система отлично сэкономит место и позволит по максимуму использовать всю полезную площадь помещения. Особенно удачным такое решение будет для любителей домашней флоры — теперь для того, чтобы открыть окно, не придется переставлять большую часть горшков с места на место (а потом — обратно).
Также раздвижное остекление из алюминия можно применять для остекления веранд, в качестве офисных перегородок, для домов и квартир и т.д.
Пластиковые раздвижные окна
Еще одним вариантом является установка металлопластиковой системы. Раздвижные пластиковые окна для балкона выполняются из специальных профилей Rehau и немецкой фурнитуры GU. Механизм открытия у них наклонно-сдвижной — потянуть на себя и сдвинуть в сторону.
Немаловажным плюсом также является функция проветривания — это очень актуально для жителей холодных регионов, семей с животными и маленькими детьми.
Раздвижные пластиковые окна на балкон — это еще и отличная защита от холода. Специальные энергосберегающие стеклопакеты, EPDM-уплотнители — все это обеспечивает превосходную теплоизоляцию. Именно поэтому балконные рамы из ПВХ устанавливаются чаще всего, особенно в частных домах и новостройках, а также при оборудовании на балконе или лоджии личного кабинета, комнаты для отдыха или гостевой. В общем, как дополнительную комнату.
При желании можно сделать так, чтобы створки открывались параллельно к прилегающим стенам. Это порой актуально, если речь идет о пластиковых раздвижных окнах для лоджии.
Вертикально раздвижные окна. Преимущества и недостатки раздвижных окон
Системы остекления с раздвижными створками, на рынке современных строительных материалов появились относительно недавно, но уже успели получить широкую популярность, благодаря удобству использования и высоким потребительским качествам.
На первый взгляд, такая система может показаться более сложной, чем обычные распашные окна. Несмотря на это, она обладает рядом характерных отличительных особенностей, благодаря которым хорошо подходит для остекления лоджий и балконов, а также для жилых помещений с маленькой площадью.
- Раздвижные створки отъезжают в стороны, параллельно раме окна, поэтому при открывании не занимают много свободного пространства . Это дает возможность свободно открывать окна даже в том случае, когда на них висят жалюзи, а на подоконнике стоят цветы или лежат какие либо вещи;

Защитная решетка не мешает открыванию сдвижных окон.