Отзыв о окна Slidors. Slidors
Отзыв о окна Slidors. Slidors
В 2003 году открылось совместное российско-южнокорейское предприятие по выпуску профилей slidors, специально адаптированных для эксплуатации в российских климатических условиях. SLIDORS (Слайдорс) – раздвижная профильная ПВХ-система для остекления балконов и лоджий, разработанная южнокорейской компанией «HANWHA».
Система SLIDORS (Слайдорс) представляет собой раздвижную конструкцию, в которой створки перемещаются параллельно друг другу аналогично конструкции шкафа-купе. Рамы и створки изготовлены из армированного ПВХ-профиля, соединенного прочными угловыми элементами. Для обеспечения высокого качества продукции на предприятии работают южнокорейские специалисты, при производстве используется сырье, поставляемое из Южной Кореи и Японии.
Slidors – раздвижная система остекления балконов и лоджий из ПВХ профиля, в которой заполнением может служить как стекло 4, 5, 6 мм, так и однокамерный стеклопакет 14 мм.
Впервые в России профили Slidors появились в конце 90-х годов. Постепенно марка становилась все более популярной, и уже в 2001-м году продукция Slidors отпускалась с двух складов (на Дальнем Востоке и в Москве). Спустя еще два года в России было запущено производство профилей ПВХ Slidors. В начале 2003 г. в г.Владивостоке было начато строительство совместного российско-корейского предприятия «Изумруд-Экструзия», ориентированного на производство, прежде всего, профильной системы Слайдорс: шла подготовка помещений, монтаж и наладка экструзионного оборудования, разработка новых видов профилей и рецептуры с учетом российских реалий. А в конце 2003 года уже была отгружена первая партия рамного профиля, экструдированного в России.
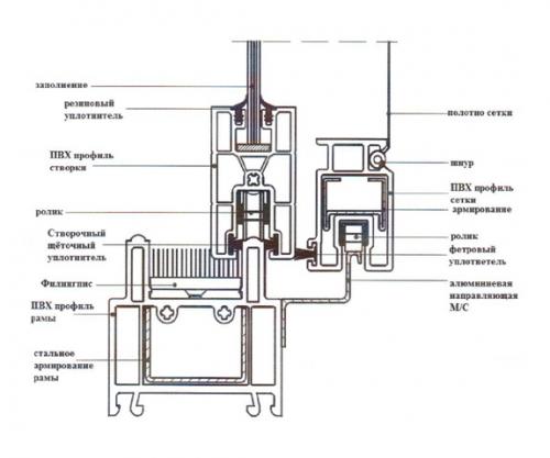
В настоящий момент можно говорить о том, что профильная система Слайдорс производится в России. Рамные и створочные профили раздвижной ПВХ-системы Слайдорс (и полный комплект профилей евро-системы DAR-WIN, элементы которой используют для изготовления глухих частей при остеклении балконов и лоджий Слайдорс) производят на заводе "Изумруд-Экструзия" (г.Владивосток). Соединитель импоста под заказ штампуется на Полевском металлофурнитурном заводе. Поставщиками армирования являются ведущие российские производители армирующих профилей. Алюминиевый рельс под москитную сетку поставляет крупный завод-производитель ВИДНАЛ-Прогресс (г. Видное). В качестве вспомогательных профилей в работе со Слайдорс можно использовать соединительные и подставочные профили широко распространенных в России профильных систем REHAU и WELTPLAST. Поставщиком внутренних и внешних угловых соединений для систем SLIRORS и DAR-WIN, а также щеточных уплотнителей является компания Sowel Int. (Южная Корея). Резиновые уплотнители поставляет Secil Rus (российское представительство турецкой компании Secil). При разработке профильной системы использовались технологии и ноу-хау лидера химической промышленности Южной Кореи, производителя системных профилей корпорации HANWHA L&C Corp. Сегодня число переработчиков профильной системы Слайдорс в России и ближнем зарубежье превышает сотню компаний. Комплектуют их 2 региональных склада (и 11 дилерских).
В настоящее время Slidors продолжает развиваться — компания постепенно расширяет ассортимент продукции, занимается собственными разработками профильных систем, выводит на рынок новые модификации профилей ПВХ. Благодаря этому торговая марка Slidors уже сегодня является широко известной во многих регионах России и постоянно приобретает новых партнеров и клиентов.
За более чем 10-летнюю историю на российском рынке SLIDORS получила заслуженное признание, как простых потребителей, так и профессионалов в области остекления. Ее по праву можно назвать «золотой серединой» среди других систем остекления, представленных у нас в России. Ведь система Слайдорс теплее алюминия, долговечнее дерева и дешевле распашных ПВХ-систем! И это еще далеко не все преимущества остекления Слайдорс.
Slidors профиль. Преимущества профиля Slidors
В конце 90-х годов на российском рынке появилась корейская компания Slidors, специализирующаяся на производстве высококачественных профилей ПВХ. Россияне сразу полюбили её. И в этом кроется несколько причин.
Слайдорс является раздвижным пластиковым профилем эконом-класса. При этом он обладает хорошим качеством. Единственный его недостаток в том, что относится к смешанному типу остекления. Для жилых помещений он не подходит, а для балконов и лоджий, как раз то, что надо.

Изготавливаются окна Slidors из экологически безопасного поливинилхлорида. Они являются прочными, легкими по сравнению с пластиковым профилем КВЕ и теплыми, в отличии от алюминиевого профиля Provedal.
Данная профильная система проста в использовании, хотя имеет сложное устройство. Фурнитура, поставляемая российскими производителями, препятствует проникновению холода в помещение, поскольку створки плотно прилегают к окну. Также герметичность остекления Slidors защищает от атмосферных осадков, шума и пыли, о чем говорят многочисленные отзывы покупателей.

Slidors профиль постоянно усовершенствуется. Сейчас выпускают стеклопакеты с теплосберегающим покрытием. Оно не выпускает тепло с помещения и в жаркую погоду не пропускает солнечные лучи вовнутрь , таким образом, экономит зимой на отоплении, и создает прохладу летом.
В отличии от профиля из алюминия , в Slidors устанавливаются щеточные уплотнения, которые имеют пластиковую прокладку. Находятся они с двух сторон между створкой и профилем.
Слайдорс – единственная профильная система, которая подходит для балконного окна с любым размером и формой.
Что касается раздвижных систем, то они не замерзают в сильные морозы и вы, не прилагая особых усилий, откроете окно. Сам механизм может иметь и нераздвижные створки, при этом раздвижные будут открываться наиболее удобным для вас способом. Что является очередным преимуществом.
Профиль слайдорс оснащен защитным замком в виде серпа и пластиковой деталью – филингписом, которые не дадут ни малейшей возможности проникнуть в дом нежеланным гостям. От комаров защитит свободно передвигающаяся по всей площади окна москитная сетка . Для нее предназначены отдельные рельсы.

Москитная сетка на раздвижные окна Слайдорс
Окна пластиковые слайдорс подойдут в любой интерьер помещения, поскольку их можно заламинировать пленкой необходимого цвета и текстуры, например дерева. А значит можно сэкономить на деревянных окнах, а вид останется таким же привлекательным.
Slidors или provedal. Раздвижные окна для балконов и лоджий
- Раздвижные окна
Раздвижные оконные системы- отличное недорогое решение для остекления балкона или лоджии. Рамы на роликах дают возможность проветривать помещение не загораживая собой проход, узкий профиль пропускает в квартиру больше естественного освещения, а сравнительно небольшой вес конструкции позволяет устанавливать раздвигающиеся окна практически на любой балкон не опасаясь за несущую способность балконного перекрытия.
В Фенстер СПб, вы можете заказать недорогие раздвижные оконные конструкции на балкон с доставкой и монтажом в Санкт Петербурге. Прежде чем сделать заказ, ознакомьтесь с.

Provedal
Раздвижная система из алюминиевого профиля
- Экологически чистый материал профиля;
- Самая низкая цена за квадратный метр остекления;
- Максимально открытый оконный проем (рама с двумя и тремя рельсами);
- Покраска рамы в любой цвет;
- Рекордно низкий вес окон;
Система проведал изготавливается из сплавов алюминия с последующей покраской. Алюминий обладает всеми необходимыми характеристиками для использования в оконной промышленности. Этот материал не боится попадания воды, ультрафиолетового излучения, легко поддаётся обработке, кроме того, при минимальном весе обладает достаточной прочностью, поэтому не требует дополнительного армирования. В процессе изготовления оконного изделия на профиль наносится полимерное покрытие. Покрытие может быть разных цветов (стандартный- белый), имеет гладкую, износостойкую поверхность.
Подробнее
Slidors
пластиковые раздвижные окна
- ПВХ профиль с внутренним армированием обеспечивает высокую жесткость конструкции при низких температурах и при значительных ветровых нагрузках;
- Совместимость с популярными профильными ПВХ системами- расширяет возможности применения;
- Высокие для раздвижных окон показатели тепло и шумо изоляции.
Американские пластиковые окна слайдер мнение экспертов. Что такое американские окна с подъемными створками?
Американские окна со створками подъемного типа – это остекленные конструкции, створки которых раздвижные, но при открывании они поднимаются вверх. Большой популярностью они пользуются в США, несколько реже такую продукцию можно встретить в Канаде. Не так давно конструкция появилась в России, стала набирать известность. Особенностью окна является качественная теплоизоляция, когда створка опущена, она не уступает обычному распашному окну, а при открывании экономит место и не имеет риска разбиться, если подует сильный ветер. Кроме того, система не мешает пользоваться подоконником в качестве подставки.Американские окна слайдер могут быть оснащены одной или двумя створками, способными к передвижению. Они будет независимы друг от друга, что позволяет комфортно использовать конструкцию, экономить ее ресурс. Мыть такое окно тоже удобно, открывая створки по очереди, но даже если конструкция будет с одной створкой, у вас не вызовет проблем ее мытье, так как достать стекло будет несложно.
Американские пластиковые окна часто называют Double hung. В России чаще ее можно встретить под названием «вертикальный слайдер». Такие окна имеют две створки и открываются независимо друг от друга в разные стороны. Створка может быть зафиксирована при помощи компенсатора. Кроме этого, данные элементы позволяют системе открываться легко, не испытывая сопротивления со стороны откатного механизма. Английское окно слайдер не требует сложного обслуживания, при необходимости створки можно откинуть в помещение, что позволит без риска упасть помыть стекла или провести какие-либо манипуляции со стеклом.
Выступающие ручки отсутствуют, благодаря чему можно использовать любой вид штор, применять механизмы, защищающие от солнца, не обращая внимания на то, насколько далеко они должны быть расположены от окна. Вместо привычных оконных ручек можно использовать прижимные замки. С их помощью конструкцию можно открывать, не применяя лишних усилий. Заказывая окно, не следует забывать об установке уплотнителей, щеток. Лучше ставить американские приспособления, так как они отвечают высоким стандартам качества, не пропускают воздух, делая конструкцию герметичной. Можно обратить внимание на изделия компании Amesbury Group, LLC, Inc.
