Теплое раздвижное остекление Slidors. Преимущества и недостатки системы Слайдорс, сравнение с аналогами
- Теплое раздвижное остекление Slidors. Преимущества и недостатки системы Слайдорс, сравнение с аналогами
 - Профиль Слайдорс. Преимущества профиля Slidors
 - Раздвижка Слайдорс. Преимущества раздвижных дверей Слайдорс
 - Раздвижные окна слайдер. Система Слайдорс: преимущества и недостатки
 - Раздвижное остекление балкона спб. Цены на остекление балконов
 - Слайдорс технические характеристики. Технические характеристики системы
 - Слайдорс панорама. Преимущества SLIDORS Panorama
 
Теплое раздвижное остекление Slidors. Преимущества и недостатки системы Слайдорс, сравнение с аналогами
Раздвижная система Слайдорс — хороший вариант для небольших квартир. Серповидные замки благодаря своей безопасности позволяют устанавливать этот профиль на первом этаже.
При изготовлении профиля применяются только экологически чистые материалы, в т. ч. поливинилхлорид. Он обладает такими характеристиками, как легкость и прочность. Створки плотно прилегают к окну, благодаря чему тепло задерживается в помещении.
Конструкция имеет сложное устройство, но она удобна в эксплуатации. Герметичность остекления препятствует проникновению в дом пыли и посторонних звуков.
Существуют стеклопакеты, оснащенные специальным покрытием, которое уменьшает теплоотдачу. В солнечную погоду это стекло отражает свет и поддерживает прохладу в помещении.
Преимущества профиля заключаются в следующем:
- Может быть использован для любой лоджии или балкона.
 - Створки не примерзают даже при сильных холодах.
 - Гарантия безопасности.
 - Оснащен москитной сеткой на отдельных рельсах.
 
Многие отдают предпочтение алюминиевым профилям, считая, что они являются более прочными. Но практика показала, что окна из пластика, в отличие от алюминия, характеризуются лучшими эксплуатационными качествами.
Было зафиксировано множество случаев, когда аналогичные по конструктивным особенностям алюминиевые раздвижные створки выпадали наружу. Это происходит в связи с тем, что в алюминиевых профилях ролики на створках являются регулируемыми. Раздвижные профили Слайдорс (фото прилагается) имеют нерегулируемые ролики, что препятствует их смещению по вертикали и, соответственно, выпадению.
Профиль Слайдорс. Преимущества профиля Slidors
В конце 90-х годов на российском рынке появилась корейская компания Slidors, специализирующаяся на производстве высококачественных профилей ПВХ. Россияне сразу полюбили её. И в этом кроется несколько причин.
Слайдорс является раздвижным пластиковым профилем эконом-класса. При этом он обладает хорошим качеством. Единственный его недостаток в том, что относится к смешанному типу остекления. Для жилых помещений он не подходит, а для балконов и лоджий, как раз то, что надо.

Изготавливаются окна Slidors из экологически безопасного поливинилхлорида. Они являются прочными, легкими по сравнению с пластиковым профилем КВЕ и теплыми, в отличии от алюминиевого профиля Provedal.
Данная профильная система проста в использовании, хотя имеет сложное устройство. Фурнитура, поставляемая российскими производителями, препятствует проникновению холода в помещение, поскольку створки плотно прилегают к окну. Также герметичность остекления Slidors защищает от атмосферных осадков, шума и пыли, о чем говорят многочисленные отзывы покупателей.

Slidors профиль постоянно усовершенствуется. Сейчас выпускают стеклопакеты с теплосберегающим покрытием. Оно не выпускает тепло с помещения и в жаркую погоду не пропускает солнечные лучи вовнутрь , таким образом, экономит зимой на отоплении, и создает прохладу летом.
В отличии от профиля из алюминия , в Slidors устанавливаются щеточные уплотнения, которые имеют пластиковую прокладку. Находятся они с двух сторон между створкой и профилем.
Слайдорс – единственная профильная система, которая подходит для балконного окна с любым размером и формой.
Что касается раздвижных систем, то они не замерзают в сильные морозы и вы, не прилагая особых усилий, откроете окно. Сам механизм может иметь и нераздвижные створки, при этом раздвижные будут открываться наиболее удобным для вас способом. Что является очередным преимуществом.
Профиль слайдорс оснащен защитным замком в виде серпа и пластиковой деталью – филингписом, которые не дадут ни малейшей возможности проникнуть в дом нежеланным гостям. От комаров защитит свободно передвигающаяся по всей площади окна москитная сетка . Для нее предназначены отдельные рельсы.

Москитная сетка на раздвижные окна Слайдорс
Окна пластиковые слайдорс подойдут в любой интерьер помещения, поскольку их можно заламинировать пленкой необходимого цвета и текстуры, например дерева. А значит можно сэкономить на деревянных окнах, а вид останется таким же привлекательным.
Раздвижка Слайдорс. Преимущества раздвижных дверей Слайдорс
- Экономия пространства — раздвижные двери не занимают места при открывании и не создают неудобств при входе в помещение.
 - Все двери подвижные — при необходимости можно сдвинуть дверь вправо или влево, чтобы освободить проход.
 - Высокая прочность конструкций — жесткость изделий обеспечивается за счет использования армирования как для коробки, так и для самих дверей.
 - Утепленность системы — двери Слайдорс обладают высоким коэффициентом сопротивления теплопередачи за счет использования стеклопакета и плотного примыкания соединительных элементов.
 - Шумоизоляция — благодаря использованию стеклопакетов шумоизоляция конструкций Слайдорс существенно возрастает.
 - Дышащие двери — за счет использования щеточного уплотнения со специальной пластиковой вставкой двери Слайдорс не продуваются, но допускают микропроветривание.
 - Декоративный потенциал — двери можно заламинировать или покрасить в любой цвет предлагаемой для пластика палитры.
 - Совместимость с оконными системами — можно выбрать коробку шириной 58 мм или 60 мм, чтобы соединить с другими оконными системами для закрытия проема.
 - Устойчивость — благодаря специальной форме ролика дверь на рельсе стоит устойчиво и не смещается. Ролик обхватывает рельс и не дает двери соскользнуть с направляющих.
 - Больше света — параметры дверей и коробки позволяют проникать внутрь помещения больше света в сравнении с распашными дверьми.
 - Доступность — цена на раздвижные двери Слайдорс близка к цене распашных дверей (из оконного профиля) и существенно меньше портальных дверей при условии схожих характеристик и свойств.
 
Раздвижные окна слайдер. Система Слайдорс: преимущества и недостатки
Установка раздвижного остекления Slidors позволяет увеличить полезное пространство за счет эргономичного конструктивного решения. Перемещающиеся по направляющим створки занимают меньше места, чем распашные блоки. В системе могут устанавливаться даже массивные створки.
При минусовых температурах блоки не примерзают к стеклу, в отличие от алюминия в рамах для остекления.
Стеклопакеты с каркасом Слайдорс в 2 раза теплее стандартных металлических каркасов.
Конструктивное решение позволяет задействовать подоконники для размещения цветов, предметов декора.
Узнайте прямо сейчас точную стоимость остекления балкона профилем Слайдорс по Вашим размерам, звоните: +7 (499) 648-33-51
Преимущество конструкции заключается в усилении оцинкованным армированием. Профиль из пластика защищен каркасом из металла, обеспечивающим долговечность, устойчивость при ветровых нагрузках, механических повреждениях. Армирование позволяет сохранять геометрическую форму каркаса.
Герметичность блоков обеспечивает двойной уплотнитель (щеточный и резиновый), не пропускающий влажность, пыль, обеспечивающий шумоизоляцию помещения.
Профиль плотно удерживается в конструкции с помощью специального крепежного элемента (филингписа). Плотное примыкание створок обеспечивает взломостойкость лоджиям.
Стоимость конструкций соответствует алюминиевым изделиям, при этом качество и эстетические характеристики недорогих моделей относятся к комфорт-классу.
Изделия отличаются безопасной эксплуатацией за счет применения специального взломостойкого замка серповидной формы, обеспечивающего надежное удержание створок.
Преимущество продукции заключается в множестве вариантов исполнения (типовых либо выполненных под авторский проект). Профиль предназначен для проемов прямоугольной, квадратной форм, выполнения сложных нестандартных конструктивных решений (округлой конфигурации, высотой более 2 м).
Конструкции производятся из экологичных полимеров, пластик легко очищается и сохраняет цвет. Предусмотрены возможности выбора стекла либо утепленного стеклопакета в зависимости от климатических условий региона.
Предусмотрена возможность настраивать перемещение створок системы в разных направлениях либо создавать статичные участки в конструкции для безопасной эксплуатации.
Необходимо учитывать, что такое, как Слайдорс, остекление разработано с учетом климата российских территорий.
Профиль с 3 камерами не замерзает при сильных морозах. На створках не образуется наледь при температуре более -15°С, при оттепели на стекле не остается конденсат.
Производитель предлагает множество дизайнерских решений. Поверхности можно ламинировать оттеночными пленками. Предусмотрены варианты окрашивания под натуральные материалы (каменные породы, древесина). При установке многофункциональных либо энергосберегающих стекол в раздвижные пластиковые окна обеспечивается повышенная теплоизоляция помещения. В летний период на лоджии сохраняется прохлада.
У профиля нет существенных недостатков, плюсы и минусы обусловлены конструктивным решением.
Профиль разработан для остекления неотапливаемых помещений ( веранды, балконы ).
Узнайте стоимость остекления вашего балкона системой Слайдорс в компании «Завод Окон ПВХ»
Отправьте заявку
При механических деформациях требуется замена элементов, реставрационные работы затруднены. В качестве оконных блоков в квартирах конструкции не используются, т.к. не обеспечат необходимый уровень теплоизоляции.
Раздвижное остекление балкона спб. Цены на остекление балконов
Цена остекления балкона зависит от размера балкона или лоджии, конструкции рам, используемых комплектующих – алюминиевых или металлопластиковых профилей, фурнитуры, стекол, стеклопакетов, а также схемы установки. При заказе балкона под ключ к стоимости остекления добавляется стоимость внешней обшивки, внутренней отделки, утепления, электрики, мебели. Доставку и замер по СПб производим бесплатно. Для наглядности размещены фото с ценами.
В компании «Балкон-Монтаж СПб» можно недорого заказать, как остекление, так и любой требуемый для благоустройства балкона или лоджии перечень услуг.
На приведенной ниже схеме балкона работы с ценами разбиты по разделам:
- ,
 
Бесплатно вызвать инженера. Специалист приедет в назначенное время, снимет размеры, выполнит расчет, в случае вашего желания оформит Договор. Оговоренная стоимость впоследствии не меняется.  | Позвонить нашим консультантам. Менеджеры проконсультируют по вопросам остекления балкона, ценам, срокам выполнения работ, гарантиям. Точность предварительного расчета 90%.  | 
Выбрать остекление по серии дома. Для серийных домов (хрущевки, корабли, 137, 504, 606 серии) мы разработали типовые варианты остекления, учитывающие особенности балконов. Точность 95 %.  | Выполнить расчет стоимости остекления самостоятельно. Для расчета можно воспользоваться собранными на этой странице расценками на конструкции, работы и материалы.  | 
Воспользоваться калькулятором. На нашем сайте размещен удобный калькулятор, который позволит узнать стоимость остекления с точностью 90%. Имеются простая и профессиональная версии.  | Посетить наш офис. Менеджеры-консультанты продемонстрируют образцы конструкций, помогут с выбором материалов, выполнят предварительный расчет стоимости с точностью 90%.  | 
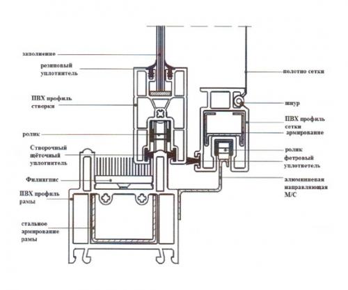
Слайдорс технические характеристики. Технические характеристики системы
Рама изготовлена из профиля ПВХ, имеет 3 камеры и вставки, которые препятствуют попаданию ветра и влаги внутрь помещения. Конструкция оснащена двойным щеточным уплотнителем. Многие подобные модели имеют одинарный стеклопакет, используемый для остекления балконов и лоджий.
За счет толщины стеклопакета можно сократить потерю тепла в 3 раза. Эта толщина может быть различной: от 6 до 14 мм.
Системы Слайдорс для балконов имеют направляющие, благодаря которым происходит перемещение сворок.

Изделия этой фирмы отличаются высокой степенью прочности, т. к. их основанием является каркас из металлического профиля. Окно способно выдержать различные нагрузки, в т. ч. и сильные порывы ветра. Конструкция обладает такими техническими характеристиками:
- Оконный профиль, состоящий из 3 камер, может иметь ширину 58, 60 и 70 мм. Защищен от промерзания.
 - Конструкция оснащена рамными углами, которые дают возможность транспортировать ее в разобранном состоянии.
 - Прочное оцинкованное армирование.
 - Оснащенность высоким рельсом и створками, защищенными от намокания и промерзания.
 - Закругление рельса для плавного хождения створки.
 - Филингпис — изоляция от продувания и несанкционированного снятия створки.
 - Ролик способствует легкому монтажу и плавному скольжению.
 - Створки идут в комплекте со стеклом и стеклопакетом (согласно требованиям заказчиков).
 - Особые серповидные замки, препятствующие взлому и промерзанию.
 - Двухсторонний герметичный уплотнитель.
 - У рамы учитывается ширина со стеклопакетом: ее размеры 18 мм, что обеспечивает высокое сопротивление теплоотдаче.
 
Этот профиль подходит для остекления балконов и лоджий. По сравнению с алюминиевыми конструкциями такой профиль лучше сохраняет тепло и более износостойкий.
Слайдорс панорама. Преимущества SLIDORS Panorama






1. Паз под стеклопакет 
В собранной створке старой системы были видны "поля" стеклопакета (рамка и герметик). Это нельзя назвать недостатком, но все же визуально выглядело не столь эстетично.
Для того чтобы "спрятать" рамку и герметик от взора потребителя, в новой системе увеличена глубина паза с 12 до 18 мм. Дополнительные 6 мм улучшают внешний вид всего окна.
Для фиксирования в створке стеклопакета раньше использовался силикон. Благодаря новому строению створки, теперь используется резиновый уплотнитель.
2. Новый стеклопакет SLIDORS 
В новой створке штатный размер стеклопакета увеличен с 14 до 18 мм. Увеличение толщины стеклопакета делает остекление балкона "теплее", позволяет размещать внутри декоративные раскладки.

3. Ролик створки 
По старой технологии в створку устанавливались только два ролика. В новой системе, из- за изменения конструкции ролика, в створку можно поставить три и более количество роликов. Это решение актуально при больших габаритах и весе створки.
Сечение ролика повторяет профиль напрвляющей, что снижает износ и обеспечивает плавность хода створки.

4. Армирование 
В новой системе СЛАЙДОРС Панорама усилили горизонтальную створку двумя дополнительными перегородками, расположенными под углом таким образом, что в сечении образуют три треугольника. Благодаря такой структуре, профиль стал еще прочнее и устойчивее к кручению.

5. Новый дизайн 
Основным отличительным элементом нового дизайна стало плавное закругление внешнего края профиля вертикальной створки, что выглядит весьма элегантно. А декоративные горизонтальные бороздки визуально облегчают внешний вид профиля. Новое штульповое соединение делает контур более четким. Современный технологический дизайн дополняет актуальная на сегодняшнем рынке эффективная цветовая гамма соединительного уголка створки и уплотнителя- "Графит".

6. Щеточные уплотнения 
Специально разработанные щеточные уплотнения с дополнительной пластиковой прокладкой, расположенной дважды по периметру створки- надёжная защита от продувания и проникновения пыли.