Американские подъемные окна слайдер. Что такое американские окна с подъемными створками?
Американские подъемные окна слайдер. Что такое американские окна с подъемными створками?
Американские окна со створками подъемного типа – это остекленные конструкции , створки которых раздвижные, но при открывании они поднимаются вверх. Большой популярностью они пользуются в США, несколько реже такую продукцию можно встретить в Канаде. Не так давно конструкция появилась в России, стала набирать известность. Особенностью окна является качественная теплоизоляция, когда створка опущена, она не уступает обычному распашному окну, а при открывании экономит место и не имеет риска разбиться, если подует сильный ветер. Кроме того, система не мешает пользоваться подоконником в качестве подставки.
Американские окна слайдер могут быть оснащены одной или двумя створками, способными к передвижению. Они будет независимы друг от друга, что позволяет комфортно использовать конструкцию, экономить ее ресурс. Мыть такое окно тоже удобно, открывая створки по очереди, но даже если конструкция будет с одной створкой, у вас не вызовет проблем ее мытье, так как достать стекло будет несложно.
Американские пластиковые окна часто называют Double hung. В России чаще ее можно встретить под названием «вертикальный слайдер». Такие окна имеют две створки и открываются независимо друг от друга в разные стороны. Створка может быть зафиксирована при помощи компенсатора. Кроме этого, данные элементы позволяют системе открываться легко, не испытывая сопротивления со стороны откатного механизма. Английское окно слайдер не требует сложного обслуживания, при необходимости створки можно откинуть в помещение, что позволит без риска упасть помыть стекла или провести какие-либо манипуляции со стеклом.
Выступающие ручки отсутствуют, благодаря чему можно использовать любой вид штор , применять механизмы, защищающие от солнца, не обращая внимания на то, насколько далеко они должны быть расположены от окна. Вместо привычных оконных ручек можно использовать прижимные замки. С их помощью конструкцию можно открывать, не применяя лишних усилий. Заказывая окно, не следует забывать об установке уплотнителей, щеток. Лучше ставить американские приспособления, так как они отвечают высоким стандартам качества, не пропускают воздух, делая конструкцию герметичной. Можно обратить внимание на изделия компании Amesbury Group, LLC, Inc.

Окна пвх слайдер. Американские окна в загородный дом
Остекление загородных домов и коттеджей. Установка раздвижных стеклопакетов любой сложности с повышенными параметрами теплоизоляции.
Также данные системы можно использовать для остекления:
- Беседок;
- Террас;
- Надстроек над бассейном;
- Летних и зимних веранд;
Американские подъемно-раздвижные окна, в отличие от европейских аналогов имеют не поворотно-откидные и распашные створки, а подъемно-откидные. Такая система удобна не только для режима проветривания, но и для мытья стекол, упрощая эксплуатацию и повседневное обслуживание окон. Также данные оконные системы смотрятся гораздо современнее.
Окна слайдеры снабжаются качественной фурнитурой Inc, LLC, Amesbury Group и Caldwell MFG CO NA, гарантируя безопасность использования. За счет качественных уплотнителей и прижимных механизмов гарантируется сохранение тепла в любой климатической зоне. Теплые американские подъемные окна разрабатываются специально для северных широт, таких как Северная Канада или северные штаты США, и показали энергетическую эффективность в диапазоне температур от -55 до до +50 градусов. Типичные московские морозы не станут для вас проблемой!
Различают две системы открывания вертикальных подъемных створок:
- Double Hung — обе створки оконного блока обладают подъемным и сдвижным механизмами.
- Single Hung — одна створка вертикально сдвижная/наклонная, одна створка глухая.
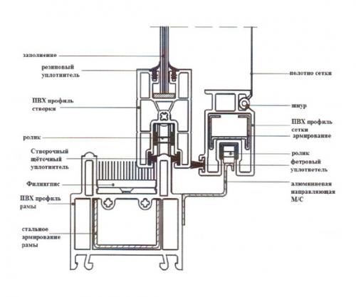
Для производства данных окон используется американский профиль EnergyCore компании Mikron Industries, Inc., которая является одним из крупнейших производителей ПВХ-профилей в США. Главное отличие этого профиля заключается в экструзионной изолирующей воздушно-камерной системе, которая является превосходным термальным барьером. Добавление воздушно-камерного ядра уменьшило теплопроводность в 4 раза по сравнению c ПВХ-профилем и в 3 раза по сравнению с деревянным профилем.

Окна слайдеры горизонтальные. Преимущества профиля Slidors
В конце 90-х годов на российском рынке появилась корейская компания Slidors, специализирующаяся на производстве высококачественных профилей ПВХ. Россияне сразу полюбили её. И в этом кроется несколько причин.
Слайдорс является раздвижным пластиковым профилем эконом-класса. При этом он обладает хорошим качеством. Единственный его недостаток в том, что относится к смешанному типу остекления. Для жилых помещений он не подходит, а для балконов и лоджий, как раз то, что надо.

Изготавливаются окна Slidors из экологически безопасного поливинилхлорида. Они являются прочными, легкими по сравнению с пластиковым профилем КВЕ и теплыми, в отличии от алюминиевого профиля Provedal.
Данная профильная система проста в использовании, хотя имеет сложное устройство. Фурнитура, поставляемая российскими производителями, препятствует проникновению холода в помещение, поскольку створки плотно прилегают к окну. Также герметичность остекления Slidors защищает от атмосферных осадков, шума и пыли, о чем говорят многочисленные отзывы покупателей.

Slidors профиль постоянно усовершенствуется. Сейчас выпускают стеклопакеты с теплосберегающим покрытием. Оно не выпускает тепло с помещения и в жаркую погоду не пропускает солнечные лучи вовнутрь , таким образом, экономит зимой на отоплении, и создает прохладу летом.
В отличии от профиля из алюминия , в Slidors устанавливаются щеточные уплотнения, которые имеют пластиковую прокладку. Находятся они с двух сторон между створкой и профилем.
Слайдорс – единственная профильная система, которая подходит для балконного окна с любым размером и формой.
Что касается раздвижных систем, то они не замерзают в сильные морозы и вы, не прилагая особых усилий, откроете окно. Сам механизм может иметь и нераздвижные створки, при этом раздвижные будут открываться наиболее удобным для вас способом. Что является очередным преимуществом.
Профиль слайдорс оснащен защитным замком в виде серпа и пластиковой деталью – филингписом, которые не дадут ни малейшей возможности проникнуть в дом нежеланным гостям. От комаров защитит свободно передвигающаяся по всей площади окна москитная сетка . Для нее предназначены отдельные рельсы.

Москитная сетка на раздвижные окна Слайдорс
Окна пластиковые слайдорс подойдут в любой интерьер помещения, поскольку их можно заламинировать пленкой необходимого цвета и текстуры, например дерева. А значит можно сэкономить на деревянных окнах, а вид останется таким же привлекательным.