Как врезать форточку в деревянное окно своими.. видео-инструкция по изготовлению, установка, ремонт, чертежи, арочные доборы, фото и цена
- Как врезать форточку в деревянное окно своими.. видео-инструкция по изготовлению, установка, ремонт, чертежи, арочные доборы, фото и цена
- Сделать форточку в пластиковом окне. Установка форточки в пластиковое окно
- Деревянная форточка своими руками. Разновидности форточек
- Как сделать форточку в глухом окне: простые шаги и советы
- Как сделать форточку в глухом деревянном окне. Как самостоятельно сделать форточку в деревянном окне?
- Окно с форточкой своими руками. Разновидности и особенности конструкций рам
- Как врезать форточку в окно. Разновидности и особенности конструкций рам
Как врезать форточку в деревянное окно своими.. видео-инструкция по изготовлению, установка, ремонт, чертежи, арочные доборы, фото и цена
Все фото из статьи
Популярные на сегодняшний день пластиковые стеклопакеты имеют множество достоинств, однако не всегда имеет смысл их устанавливать. К примеру, если нужно остеклить деревянный домик на даче, то имея хотя бы небольшой опыт работы с деревом, гораздо дешевле и практичней будет сделать самодельные рамы или обновить имеющиеся. Ниже мы ознакомимся с технологией изготовления окон, а также рассмотрим как обновить старые деревянные окна своими руками.

Деревянное двухстворчатое окно
Изготовление окон
Чтобы от начала и до конца изготовить окно из дерева своими руками,необходимо произвести следующие действия:
- Составление проекта;
- Изготовление и монтаж коробки;
- Изготовление оконной рамы;
- Установка и остекление рамы.
Ниже подробней ознакомимся со всеми этими этапами работы.

Пример схемы деревянного окна
Составление проекта
Прежде всего необходимо выполнить чертежи как сделать деревянное окно своими руками. Для этого надо определиться с размерами будущего изделия и его конструкцией. Соответственно, предварительно следует измерить оконный проем.
Чтобы правильно составить чертежи деревянных окон своими руками, можно ознакомиться с существующими проектами, и подобать из них наиболее оптимальный. В таком случае останется лишь подогнать размеры конструкции под оконные проемы здания.
В итоге выполненные чертежи окон своими руками из дерева должны отображать все детали изделия, а также их размеры, указанные обязательно в миллиметрах. Наличие такого проекта значительно упростит рабочий процесс, так как все нюансы конструкции будут у вас перед глазами. Соответственно, уменьшается вероятность допущения ошибок.
Ниже в качестве примера рассмотрим, как выполнить наиболее простую конструкцию – глухое деревянное окно своими руками.

Схема оконного короба
Изготовление короба
Короб является хоть и самым простым элементам окна, к его изготовлению нужно подходить очень ответственно, так как именно он принимает на себя всю нагрузку от окна. Для изготовления короба можно использовать лишь хорошо просушенные доски, без каких либо дефектов. Отличным вариантом являются сосновые доски, так как достаточно устойчивы к воздействию влаги.
Сделать форточку в пластиковом окне. Установка форточки в пластиковое окно
Установка форточек
Модернизация окон / Замена поворотной створки на поворотно-откидную
В последнее время все большую популярность приобретает услуга установка форточек вместо глухого стеклопакета . Это обусловлено повышением требований к комфорту. Наш дом – наша крепость, поэтому в жилище все должно быть обустроено максимально удобно и функционально.
Глухое (неоткрывающееся)
окно
Открывающаяся створка вместо стеклопакета
Окна с глухими стеклопакетами нередко устанавливаются в целях экономии. Чаще всего такая экономия практикуется в новостройках, однако в процессе эксплуатации глухое окно не всегда удобно. Так, внешняя сторона стеклопакета автоматически становится труднодоступной для очистки.
Еще одна распространенная проблема новостроев – это балконный блок (балконная дверь+окно) с глухим окном. В таком случае проветрить комнату возможно лишь с помощью открытой балконной двери, что доставляет массу неудобств. Исправить положение можно с помощью замены фурнитурной обвязки балконной двери из поворотной на поворотно-откидную. При этом воздух поступает вверху и по бокам двери, а низ остается закрытым. Однако лучшим способом решения проблемы является замена глухого стеклопакета на створку окна или фрамугу.
Чаще всего форточки устанавливается на самую узкую створку окна. Параллельно с этим можно сделать утепление всей створки.
Этапы установки форточек/створок
Шаг 1. Замер и изготовление створки
Шаг 2. Демонтаж глухого (неоткрывающегося) стеклопакета
Шаг 3. Монтаж створки
Шаг 4. Регулировка
Шаг 5. Сдача работы
Установка форточки происходит на месте заказа.
Переделать в открывающиеся можно также фрамуги – верхние оконные рамы. Такие конструкции безопасны для детей и позволяют проветривать помещение без сквозняков: холодный воздух, опускаясь, постепенно прогревается. Фрамуги бывают в форме арки, трапеции, многоугольника и т.д.
Чаще всего фрамуги встречаются в окнах более 1,7 м. Как правило, это дома с высокими потолками и большими проемами.
Фрамуги могут открываться как сверху, так и снизу. Они наиболее распространены в виде отдельных пластиковых открывающихся горизонтальных окон подсобных помещений – гаражей, кладовок. В такие изделия можно устанавливать москитные сетки.
Установить фрамугу или форточку можно как в простое вертикальное окно, так и в окно на крыше под уклоном. Для открытия подобных конструкций существует ручка дистанционного открывания, которую можно расположить на любой высоте.
Изготовление форточки или фрамуги производится в течение 6 рабочих дней после замера. Установка и регулировка займет не более 2 часов.
Примеры выполненных работ:
Изготовление форточек
Мы делаем различные виды форточек для пластиковых, деревянных и алюминиевых окон со стеклопакетами и для дверей, в том числе форточки для ночной торговли, а также форточки для окон советского периода спаренной конструкции.

На следующих фотографиях можно увидеть пример изготовления форточки для пластикового окна в глухом фасадном остеклении на 15 этаже многоэтажного дома без применения услуг альпинистов. Эти уникальные работы требуют исключительной осторожности и высокого профессионализма мастеров.

Стекла вырезались кусками.


Изготовление форточки для пластикового окна – это чаще всего изготовление новой створки с форточкой. Это стоит недёшево, так как помимо изготовления пластиковой створки с форточкой нужно будет изготовить два стеклопакета для установки в сворку под форточкой и в саму форточку, также понадобится фурнитура. С установкой и доставкой это обойдётся вам в сумму от 13000 рублей.
Пример врезки форточки в глухое окно.
Не забывайте также рассмотреть вариант установки детских замков, гребенок, фурнитуры ступенчатого открывания — это может быть более дешевой альтернативой изготовлению форточек. На нашем сайте в рубрике ДОПОЛНИТЕЛЬНЫЕ АКСЕССУАРЫ НА ОКНА есть много вариантов детских замков и гребенок.
Изготовление форточки может понадобиться и для вывода трубы напольного кондиционера.

В рубрике УСТАНОВКА НАПОЛЬНЫХ КОНДИЦИОНЕРОВ можно увидеть и другие примеры подобных реконструкций палстиковых окон.
Также можем установить форточки для пластиковых и алюминиевых и деревянных окон с дистанционным открыванием — в труднодоступные места.

Изготовление форточки для деревянного окна со стеклопакетами — это изготовление створки и двух стеклопакетов — для форточки и для створки под форточкой, в также установка фурнитуры. Цена такой форточки — от 25 000 рублей.
Деревянная форточка своими руками. Разновидности форточек
Форточка – это небольшое окошко, которое встраивается в конструкцию окна и используется в первую очередь для проветривания помещения. По большому счету, все форточки делаются по одной схеме, но все же их можно условно разделить на несколько групп:

Стандартная конструкция, известная каждому из нас
Эта конструкция является наиболее популярной и востребованной. Врезная форточка проектируется и изготавливается вместе с самим окном, при этом обеспечивая максимальную прочность и надежность всех соединений.
Формирование врезной створки возможно как в деревянных, так и в пластиковых конструкциях, но вол втором случае действую ограничения, которые я охарактеризую в следующем разделе.
Если вы задумываетесь о том, как сделать форточку в пластиковом окне, которое уже установлено в проем, то вам подойдет разрезной вариант. Для монтажа конструкции удаляется часть глухой створки, а на ее место монтируется поворотное изделие со стеклопакетом.
Примерно так же происходит монтаж разрезной створки в деревянное окно.
Скользящая форточка – самая сложная в изготовлении, но при этом и самая удобная. При ее сооружении в профиле выбираются пазы, по которым двигается либо только стеклопакет, либо пара стекол, установленных на легкую рамку.
Скользить форточка может либо в горизонтальном, либо в вертикальном направлении.

Схема сдвижной форточки. Лучше использовать триплекс или упрочненное стекло
В любом случае важно иметь в виду, что именно небольшой размер этого элемента накладывает отпечаток на его конструкцию и особенности установки на раму. И если в деревянном окне эти ограничения можно сравнительно легко обойти, то в случае с металлопластиковым изделием проектировщики и изготовители вынуждены проявлять определенную изобретательность.
Как сделать форточку в глухом окне: простые шаги и советы
Если вы живете в квартире или доме с глухими окнами, но хотите обеспечить вентиляцию и свежий воздух в помещение, вы можете самостоятельно сделать форточку. Это несложно и не требует особых навыков – достаточно следовать пошаговой инструкции и использовать нужные инструменты.
Статья:
Глухое окно – это окно, которое не открывается и не имеет механизмов вентиляции. Такие окна, как правило, устанавливаются для теплоизоляции и звукоизоляции помещений, однако иногда они могут стать проблемой, особенно в жаркое время года, когда нужен свежий воздух. Но не стоит отчаиваться – сделать форточку в глухом окне можно самостоятельно. В этой статье мы расскажем, как это сделать.
Шаг 1: выбрать место для форточки
Первым шагом необходимо выбрать место, где будет располагаться форточка. Лучше всего выбирать место, где есть небольшой свободный участок окна, куда можно установить форточку. При этом не стоит выбирать места, близкие к батареям отопления, электроприборам и другим источникам тепла, чтобы не нарушать теплообмен в помещении.
Шаг 2: измерить размеры форточки
Следующим шагом нужно измерить ширину и высоту выбранного участка окна. Размеры форточки должны быть не менее 30х30 см, чтобы обеспечить достаточную вентиляцию в помещении.
Шаг 3: подготовить материалы и инструменты
Для изготовления форточки понадобятся: пила по металлу, линейка, металлические кусачки, шурупы, шуруповерт, ручка или держатель для форточки, москитная сетка и фанера толщиной около 1 см.
Шаг 4: вырезать отверстие и установить фанеру
После того, как выбрано место и измерены размеры форточки, можно приступать к работе. Сначала нужно вырезать отверстие в глухом окне, используя пилу по металлу. Затем нарежьте фанеру на нужный размер и зафиксируйте ее на месте, используя шурупы и шуруповерт.
Шаг 5: установить москитную сетку
Для того, чтобы защитить помещение от насекомых, необходимо установить москитную сетку на форточку. Она должна быть фиксирована на держателе с помощью шурупов и кусачек.
Шаг 6: установить ручку или держатель для форточки
Для того, чтобы было удобно открывать и закрывать форточку, можно установить ручку или держатель в нижней части фанеры. Это может быть простая пластиковая ручка или держатель, который будет прикреплен к фанере с помощью шурупов.
Таким образом, сделать форточку в глухом окне – это несложно и не требует особых умений. Она обеспечит вентиляцию помещения и защитит от насекомых. Главное – следовать пошаговой инструкции и не забывать про меры безопасности: работать в перчатках и защитных очках, а также держать острые инструменты подальше от детей и животных.
Как сделать форточку в глухом деревянном окне. Как самостоятельно сделать форточку в деревянном окне?
Виды форточек
Форточки для пластиковых окон могут быть трех видов:
- Врезная форточка: это самый дорогостоящий и эстетичный вариант. Врезная форточка является составной частью оконного профиля, поэтому она идеально подходит к окну по цвету и размеру. Такая форточка прочна и долговечна.
Также можно выделить такие виды форточек:
- Открывающаяся форточка в «глухом» окне;
- Открывающаяся форточка и створка под ней при «глухой» второй створке;
Открывающаяся форточка и подвижная большая створка;
Форточки в пластиковых окнах могут открываться как поворотным, так и откидным способом. Возможны варианты с поворотно-откидным способом.
Более распространены обычные форточки (прямоугольник в треть створки), но встречаются и форточки-фрамуги (откидной прямоугольник, занимающий верхнюю треть окна).
Как выбрать размер?
Для того чтобы заказать окна ПВХ с форточкой , необходимо знать размеры оконного проема. Обычно створки делят окно примерно пополам, однако это необязательно. Можно заказать окно, верхняя часть которого будет являться форточкой, и она сможет быть по длине равной проему. Можно заказать конструкцию с небольшой квадратной форточкой, все зависит от пожеланий покупателя.
Форточки удобны в использовании, украшают окно и делают его более функциональным. Можно заказать конструкцию сразу или врезать форточку позже, в обоих случаях вы получите качественное решение для проветривания.
Изготовление
Материалы и инструменты
Перед тем как сделать форточку в деревянном окне,надо подготовить некоторые материалы и инструменты:
- Бруски для рамы сечением примерно 50х60 мм(подбираются индивидуально);
- Штангенциркуль;
- Столярная стамеска;
- Молоток;
- Рулетка;
- Ножовка;
- Электрорубанок;
- Рулетка.
Обратите внимание! Чтобы изделие прослужило длительное время, деревянные бруски должны быть высушенными и хорошего качества – без сучков и трещин. Кроме того, их предварительно необходимо обработать антисептическим средством, предотвращающим гниение древесины.
На фото – брус 50х60 мм
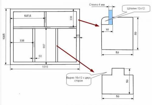
Чертеж
После подготовки инструмента и материалов нужно выполнить чертеж. Для этого в первую очередь следует измерить брус,из которого выполнена створка, чтобы выполнить форточку из таких же деталей.
На схеме необходимо указать в миллиметрах все размеры оконной рамы, створки и всех остальных элементов. Наличие чертежа позволит правильно раскроить материалы и избежать ошибок в процессе работы.
Демонтаж створки
Переделка оконных створок
В первую очередь необходимо переделать обе створки окна.
Инструкция по выполнению этой работы выглядит так:
- Первым делом нужно демонтировать штапики и вытащить стекло.
- Далее надо демонтировать верхнюю планку створки и укоротить стойки. Если демонтировать верхнюю планку не получается, можно вырезать часть стоек посередине.
Соединение деталей осуществляется при помощи столярного клея. Если имеется фрезер, можно выполнить соединение по принципу шип/паз. Если же вырезать пазы нет возможности, следует укрепить соединение при помощи металлических уголков или планок.
- Затем необходимо укоротить стекло и штапики, чтобы можно было вставить в раму.
Точно так же выполняется и вторая, наружная створка, единственное, следует учитывать, что она должна быть меньше внутренней, чтобы свободно могла открываться.
Совет! Обычные шторы мешают пользоваться форточкой. Поэтому можно приобрести специальные рулонные шторы на деревянные окна с форточкой или жалюзи.
Пример -жалюзи на деревянные окна с форточкой
Изготовление
Теперь можно приступать к изготовлению форточки.
Окно с форточкой своими руками. Разновидности и особенности конструкций рам
Видов конструкций множество. Они могут быть стандартными или выполняться под заказ, в зависимости от оконного проема. Но основных разновидностей несколько:

Разновидности и размеры оконных рам.
- Глухие оконные переплеты, которые не имеют возможности открываться. Для проникновения естественного света они располагаются, например, по глухой стене, вдоль которой построена лестница на 2 этаж.
- Открывающиеся. Количество движущихся створок может варьироваться от 1 до 3 и более, если размер оконного проема позволяет, а ширина створки будет не слишком узкая.
- Подъемные и раздвижные. Эти окна отличаются способом открывания и чаще всего располагаются в комнатах с определенным интерьером для поддержания стиля.
- Переплеты с установкой форточки. Причем форточек может быть несколько и обычно их количество определяется количеством створок окна.
Именно использование такого дополнительного элемента оконного переплета, как форточка, дает ряд преимуществ:
- Через открытую форточку холодный воздух, попадая в теплое помещение, не устремляется к потолку, в отличие от пластикового окна с поворотно-откидным механизмом. Благодаря этому в комнате происходит движение воздушных потоков, а сквозняки отсутствуют.
- Форточка не оказывает влияния на общие свойства оконного переплета, при этом увеличивает прочность и надежность конструкции окна за счет наличия распорки;
- У форточки значительно выше диапазон регулирования открытия на проветривание, значит, больше возможности влиять на поступление холодного воздуха внутрь комнаты. То есть, немного приоткрыв форточку на весь день, можно обеспечить свежим воздухом помещение на протяжении ночи, когда организм особенно восприимчив к сквознякам. При этом температура внутри помещения особых изменений не претерпит.
Кроме того, само размещение и крепление форточки внутри оконного переплета может быть различным. От того, как выполнено это крепление, будет зависеть и стоимость окна в целом, и его внешний вид.
Форточки бывают:
Схема врезной форточки.
- Врезные. Такая модель форточки является частью единого каркаса оконного переплета и поэтому подгоняется максимально точно, не допуская зазоров. Подобное крепление считается наиболее надежным.
- Разрезные. Форточка собирается отдельно от окна, а затем, после разрезания одной из створок, просто вставляется в образовавшееся пространство. Крепление такой форточки осуществляется посредством накладных наружных петель.
- Скользящие. Такую форточку также изготавливают отдельно, однако крепят ее в специально приготовленные горизонтальные направляющие, которые прорезают в створке. Это наиболее сложная по исполнению и креплению конструкция форточки, делается она крайне редко. Скользящая форточка имеет очень необычный и привлекательный вид.
При самостоятельном изготовлении оконного переплета с форточкой чаще всего выбирают разрезную модель. Она наиболее проста в исполнении и креплении, особенно если навыков по изготовлению деревянного окна не слишком много. После того как этот навык наработается, можно приступать к изготовлению более сложных конструкций.
Как врезать форточку в окно: разновидности и особенности конструкций рам
Виды конструкций оконных рам множество. Они могут быть стандартными или выполняться под заказ, в зависимости от оконного проема. Но основных разновидностей несколько:
Разновидности и размеры оконных рам
Именно использование такого дополнительного элемента оконного переплета, как форточка, дает ряд преимуществ:
- Увеличивает прочность окна
- Упрощает монтаж и демонтаж
- Позволяет регулировать светопропускание
- Улучшает внешний вид окна
Кроме того, само размещение и крепление форточки внутри оконного переплета может быть различным. От того, как выполнено это крепление, будет зависеть и стоимость окна в целом, и его внешний вид.
Схема врезной форточки
При самостоятельном изготовлении оконного переплета с форточкой чаще всего выбирают разрезную модель. Она наиболее проста в исполнении и креплении, особенно если навыков по изготовлению деревянного окна не слишком много. После того как этот навык наработается, можно приступать к изготовлению более сложных конструкций.
Важно помнить, что качество и надежность оконного переплета зависит от квалификации мастера и использованных материалов. Поэтому перед началом работ рекомендуется тщательно выбрать материалы и изучить технологию монтажа.
Как врезать форточку в окно. Разновидности и особенности конструкций рам
Видов конструкций множество. Они могут быть стандартными или выполняться под заказ, в зависимости от оконного проема. Но основных разновидностей несколько:
Разновидности и размеры оконных рам.
- Глухие оконные переплеты, которые не имеют возможности открываться. Для проникновения естественного света они располагаются, например, по глухой стене, вдоль которой построена лестница на 2 этаж.
- Открывающиеся. Количество движущихся створок может варьироваться от 1 до 3 и более, если размер оконного проема позволяет, а ширина створки будет не слишком узкая.
- Подъемные и раздвижные. Эти окна отличаются способом открывания и чаще всего располагаются в комнатах с определенным интерьером для поддержания стиля.
- Переплеты с установкой форточки. Причем форточек может быть несколько и обычно их количество определяется количеством створок окна.
Именно использование такого дополнительного элемента оконного переплета, как форточка, дает ряд преимуществ:
- Через открытую форточку холодный воздух, попадая в теплое помещение, не устремляется к потолку, в отличие от пластикового окна с поворотно-откидным механизмом. Благодаря этому в комнате происходит движение воздушных потоков, а сквозняки отсутствуют.
- Форточка не оказывает влияния на общие свойства оконного переплета, при этом увеличивает прочность и надежность конструкции окна за счет наличия распорки;
- У форточки значительно выше диапазон регулирования открытия на проветривание, значит, больше возможности влиять на поступление холодного воздуха внутрь комнаты. То есть, немного приоткрыв форточку на весь день, можно обеспечить свежим воздухом помещение на протяжении ночи, когда организм особенно восприимчив к сквознякам. При этом температура внутри помещения особых изменений не претерпит.
Кроме того, само размещение и крепление форточки внутри оконного переплета может быть различным. От того, как выполнено это крепление, будет зависеть и стоимость окна в целом, и его внешний вид.
Схема врезной форточки.
- Врезные. Такая модель форточки является частью единого каркаса оконного переплета и поэтому подгоняется максимально точно, не допуская зазоров. Подобное крепление считается наиболее надежным.
- Разрезные. Форточка собирается отдельно от окна, а затем, после разрезания одной из створок, просто вставляется в образовавшееся пространство. Крепление такой форточки осуществляется посредством накладных наружных петель.
- Скользящие. Такую форточку также изготавливают отдельно, однако крепят ее в специально приготовленные горизонтальные направляющие, которые прорезают в створке. Это наиболее сложная по исполнению и креплению конструкция форточки, делается она крайне редко. Скользящая форточка имеет очень необычный и привлекательный вид.
При самостоятельном изготовлении оконного переплета с форточкой чаще всего выбирают разрезную модель. Она наиболее проста в исполнении и креплении, особенно если навыков по изготовлению деревянного окна не слишком много. После того как этот навык наработается, можно приступать к изготовлению более сложных конструкций.
Как врезать форточку в окно: разновидности и особенности конструкций рам
Виды конструкций оконных рам множество. Они могут быть стандартными или выполняться под заказ, в зависимости от оконного проема. Но основных разновидностей несколько:
Разновидности и размеры оконных рам
Именно использование такого дополнительного элемента оконного переплета, как форточка, дает ряд преимуществ:
- Увеличивает прочность окна
- Упрощает монтаж и демонтаж
- Позволяет регулировать светопропускание
- Улучшает внешний вид окна
Кроме того, само размещение и крепление форточки внутри оконного переплета может быть различным. От того, как выполнено это крепление, будет зависеть и стоимость окна в целом, и его внешний вид.
Схема врезной форточки
При самостоятельном изготовлении оконного переплета с форточкой чаще всего выбирают разрезную модель. Она наиболее проста в исполнении и креплении, особенно если навыков по изготовлению деревянного окна не слишком много. После того как этот навык наработается, можно приступать к изготовлению более сложных конструкций.
Важно помнить, что качество и надежность оконного переплета зависит от квалификации мастера и использованных материалов. Поэтому перед началом работ рекомендуется тщательно выбрать материалы и изучить технологию монтажа.