Чертеж кухни с угловой мойкой. Угловой шкаф под мойку: начинаем с замеров и чертежей
- Чертеж кухни с угловой мойкой. Угловой шкаф под мойку: начинаем с замеров и чертежей
- Дизайн кухни с угловой мойкой. Как оформить угловую кухню с мойкой в углу – современный дизайн и планировка
- Угловые кухни в современном стиле. Маленькие угловые кухни
- Готовые чертежи кухни. Типы планировки кухонных гарнитуров
- Проект угловой кухни с размерами. Разработка дизайна
- Проект угловой кухни онлайн. Онлайн конструктор кухни. Спроектируйте собственную кухню в 3D
- Чертежи угловой кухни своими руками. Как правильно создать чертеж угловой кухни?
- Проект угловой кухни с окном. Как оформить окно?
Чертеж кухни с угловой мойкой. Угловой шкаф под мойку: начинаем с замеров и чертежей
Если не брать во внимание принцип встраивания чаши мойки (а она может быть накладной и врезной), то различают три конструкции углового шкафа под мойки:
- Прямой приставной угловой стол-тумба. Фактически представляет собой стандартный кухонный модуль с одной «заглушенной» дверцей – фальш-панелью. Самый распространенный вариант в модульных кухнях.
- Г-образный угловой стол-тумба. Самый гибкий в плане изменения размеров вариант. Чаще всего комплектуется дверцей-трансформером, что существенно расширяет доступ внутрь шкафа.
- Трапециевидный стол-тумба под мойку. Самый громоздкий «классический» вариант углового шкафа под мойку. Не рекомендуется ставить в маленькие кухни, поскольку «съедает» много полезной площади.
Чертежи углового стола-тумбы под мойку «приставного»
Типовые размеры углового шкафа под мойку такой конструкции – это 1000х600 мм по столешнице. При этом сам модуль, с учетом свеса столешницы спереди, сзади и от угла, имеет габариты 950х550. Размеры фасада при таких размерах и стандартной высоте кухонных модулей – 716х396 мм.
Обычно для подвода коммуникаций водоснабжения, во внутренней боковине шкафа под мойку делают выпил, примерно 250х150.

Если трубы заходят глубже, то боковину лучше делать не сплошную, а «собрать» ее из планок.
Чертежи углового шкафа под мойку Г-образной формы
На стол-тумбу такой конструкции можно дать два чертежа, с разной конструкцией задних стенок. Первый чертеж подойдет в том случае, если все коммуникации «заходят» от угла с одной стороны.
Если в шкаф под мойку планируется выводить счетчики, подключается отдельный фильтр и вообще запланировано много разводок (для посудомоечной, стиральной машины), то лучше оставить полыми обе стороны.
Размеры углового шкафа мойки в стандартном исполнении составляют 920х920 мм (с учетом заднего свеса столешницы 970х970 мм). В этом случае ставится две дверцы размером 716х396.
Модуль можно видоизменять, подрезая размер любой из сторон. При этом всегда более широкая дверца крепится к боковине, а легкая – к ней. Иначе дверца-трансформер со временем начнет провисать.

Чертежи углового стола-мойки «трапеция»
Угловые шкафы под мойку характерной трапециевидной формы хорошо смотрятся только в просторных кухнях в классическом оформлении.
Для современного дизайна кухни лучше подходит оформление первых двух вариантов тумб-моек.
Несколько смягчает дизайн радиусное оформление створки и столешницы, с вогнутой формой.

Но при этом сам кухонный модуль остается очень громоздким, объемным, с ограниченным доступом вовнутрь. При его габаритных размерах 900х900 (с учетом свесов столешницы) дверца 716х470.
Еще один недостаток этого кухонного модуля в том, что требуется дополнительно стыковать стандартные столешницы шириной 600 мм. А это – наличие дополнительного шва в районе мойки, который потенциально может разбухнуть от влаги.
Стык делают в одном уровне с мойкой либо за счет надстройки.
Стыка можно избежать, если заказать столешницу из искусственного камня или пластика. Но это ведет к удорожанию всей кухни.
Есть в продаже и пятиугольные, готовые столешницы-постформинг специально под мойки трапецией. Но ассортимент их ограничен.
Дизайн кухни с угловой мойкой. Как оформить угловую кухню с мойкой в углу – современный дизайн и планировка
Кухня – сердце квартиры. Очень важно создать здесь не только удобную рабочую зону, но и приятную атмосферу. Для помещений с небольшим метражом отличным вариантом может стать угловая кухня с мойкой в углу.

Преимущества и недостатки угловых кухонь
Если вы решили выбрать новый кухонный гарнитур и рассматриваете угловой вариант планировки, обратите внимание на ряд существенных преимуществ:
- Современные технологии позволяют сделать гарнитур наиболее компактным и вместительным, а также встроить всю необходимую технику, которая будет буквально на расстоянии вытянутой руки.
- Угловой гарнитур обеспечивает большое рабочее место и зрительно отделяет зону готовки от обеденной группы.
- При заказе гарнитура можно подобрать для себя самую подходящую конфигурацию шкафчиков, техники и других элементов. При подготовке проекта можно добавить электрическую или газовую плиту, холодильник, стиральную и посудомоечную машину и т. д.

Тем не менее перед такой крупной покупкой стоит обратить внимание и на недостатки:
- Чаще всего угловые кухни не подходят для слишком узких помещений или комнат неправильной формы.
- Некоторые варианты угловых кухонь сложны в монтаже, особенно если на стенах есть неровности.
- В слишком больших помещениях (больше 10 м²) угловая кухня займет нерационально много полезного пространства. В этом случае лучше рассмотреть прямую кухню с островом.
Какую мойку выбрать для угловой кухни
Если Вы решили остановить выбор на современной угловой кухне с мойкой в углу, обратите внимание на некоторые критерии выбора мойки, чтобы выбрать наиболее подходящий вариант.
Мойка с отдельным модулем
На сегодняшний день самым практичным вариантом при проектировании угловой кухни считается мойка с отдельным модулем. Под раковину устанавливается отдельная тумба, форма которой выбирается в зависимости от метража кухни и пожеланий владельца.

Модуль с прямым углом
При использовании прямоугольной тумбы мойка немного смещена в сторону, что позволяет сохранить оптимальное расстояние от чаши до края столешницы. При пользовании мойкой перекрывается доступ к некоторым ящикам, тем не менее такая конфигурация отличается компактностью и подойдет даже для совсем небольших кухонь.

Модуль со скошенным углом
Модуль со скошенным углом, напротив, подходит для более крупных помещений, потому что средний размер такой тумбы 0,9×0,9 м. В данном случае мойка размещается точно в углу столешницы, освобождая больше рабочей поверхности без вреда комфорту использования. Кроме моментов, когда человек пользуется раковиной, доступ к другим ящикам и рабочим поверхностям открыт почти полностью.

Выбор правильного угла для раковины
Остановив выбор на мойке с отдельным модулем, стоит уделить особое внимание выбору конфигурации и месторасположения будущей раковины. Стоит учесть несколько факторов:
- Доступность коммуникаций.
- Расположение окон, варочной панели и других поверхностей, которые могут запачкаться или испортиться от соседства с мойкой.
- Ведущая рука того, кто будет пользоваться. То, что удобно для правши, не всегда сработает для левши и наоборот.
Тип угла же выбирается с учетом:
- Метража.
- Особенностей планировки помещения.
- Количества людей, которые будут одновременно пользоваться гарнитуром.
- Личных эстетических предпочтений.

Угловая раковина без отдельного модуля
Более дешёвым и простым в реализации вариантом будет мойка без отдельного модуля. В этом случае чаша врезается прямо в столешницу в самом углу кухни. В настоящее время такая планировка используется крайне редко, потому что имеет два существенных недостатка:
- Если человек моет посуду, перекрывается доступ к большому количеству мест хранения.
- Мойка находится далеко от края столешницы, поэтому приходится держать посуду на вытянутых руках, что в долгосрочной перспективе может даже привести к проблемам со спиной.

Форма чаши
После выбора способа расположения мойки на кухне возникает важный вопрос, какой формы должна быть чаша. Здесь нет однозначного ответа. Форму чаши раковины следует выбирать исходя из того, как она будет использоваться. Относительно размера специалисты рекомендуют ориентироваться на диаметр самой большой кастрюли, при этом от края раковины до бортиков и края столешницы должно быть не менее 5 см.
Что касается формы, стоит учитывать, сколько места отведено для раковины и какая форма позволит использовать это место наиболее практично.
Квадратная
Самая привычная для многих является – форма. Такие раковины вместительны и удобны в использовании. На сегодняшний момент квадратные мойки наиболее популярны на рынке, поэтому можно выбрать из множества вариантов материалов, дизайнов и расцветок. Средний размер 0,5×0,5 м.

Прямоугольная
Другая популярная форма – прямоугольная. Эти мойки подходят для узких столешниц и в некоторых случаях используют пространство более эффективно, чем квадратные. Тем не менее вытянутая форма может быть неудобна в использовании и уходе. Средний размер 0,5×1,5 м, однако выбор очень разнообразен.
Кухня – сердце квартиры. Очень важно создать здесь не только удобную рабочую зону, но и приятную атмосферу. Для помещений с небольшим метражом отличным вариантом может стать угловая кухня с мойкой в углу.
Преимущества угловой кухни с мойкой
- Удобство использования: мойка находится в доступном месте, что облегчает приготовление еды
- Компактность: угловая кухня занимает меньше места, чем традиционная
- Возможность создания дополнительной рабочей поверхности: мойка может быть использована как дополнительная поверхность для приготовления еды
Недостатки угловой кухни с мойкой
- Ограничение доступа к некоторым ящикам: мойка может перекрывать доступ к некоторым ящикам
- Недостаток пространства: угловая кухня может занимать меньше места, чем традиционная
Выбор мойки для угловой кухни
При выборе мойки для угловой кухни необходимо учитывать несколько критериев:
- Размер мойки: мойка должна быть подходящей для размера кухни и личных предпочтений владельца
- Форма мойки: мойка может быть прямой или скошенной, в зависимости от метража кухни и пожеланий владельца
- Материал мойки: мойка может быть сделана из различных материалов, таких как стекло, металл или пластик
Примеры угловых кухонь с мойкой
Выбор угловой кухни с мойкой в углу – это отличный способ создать удобную и функциональную зону для приготовления еды. Помните о критериях выбора мойки и планировке, чтобы создать идеальную угловую кухню для вас.
Угловые кухни в современном стиле. Маленькие угловые кухни

Угловая комплектация мебели — прекрасный вариант для малогабаритных помещений с площадью 3-8 кв. м. Но планировка такого помещения заслуживает особого внимания, так как разместить нужно много предметов, но при этом создать иллюзию просторного интерьера. Несколько советов помогут вам избежать типичных ошибок и сделать свою кухню уютной и красивой.
- 1 Выберите современный стиль . Дизайнеры советуют для маленькой кухни выбирать современные стили: модерн, минимализм, хай-тек. Любая классика в миниатюрном исполнении выглядит претенциозно, чопорно и зачастую неуместно.
- 2 Наполните маленькую кухню светом . Это касается не только светильников (чем их будет больше, тем лучше). К потолочной люстре и бра стоит добавить дополнительную подсветку рабочей зоны. Встроенные светильники внутри шкафов со стеклянными дверцами не только подсветят красивую посуду, но и визуально раздвинут стены. Светодиодные ленты, расположенные над верхними шкафами придадут мебели невесомости.Также стоит выбирать мебель с глянцевой поверхностью или шкафчики со стеклянными или зеркальными дверцами — их отражающая поверхность добавит помещению света.
- 3 Выбирайте выше и уже . Для маленькой кухни лучше выбирать угловые модули и навесные шкафы узкие, но высокие.
- 4 Избегайте острых углов . Глухие торцы угловых комплектов зрительно "съедают" пространство, делая мебель громоздкой. Хорошо, если "плечи" угла заканчиваются ящиками обтекаемой формы. Еще один вариант: поставить здесь секции с открытыми полками. На полках великолепно будут смотреться горшки с цветами, декоративные вазочки, статуэтки, фото в рамках или просто красивая посуда.
- 5 Задействуйте подоконник . При угловой комплектации мебели вторую сторону угла можно вывести под стену с окном. Расширив подоконник, вы получите дополнительную рабочую поверхность. Под окном прекрасно поместятся неглубокие шкафчики. Если же под окном располагается радиатор отопления, то можно оборудовать откидной столик, закрыв радиатор резной декоративной панелью.
- 6 Освободите пол . Есть одна дизайнерская хитрость, которая поможет вам придать помещению больше простора: чем больше свободного пола, тем просторнее кажется комната. Оборудуя угловую кухню с миниатюрной площадью, выберите нижние шкафы на высоких ножках.
- 7 Выбирайте встроенную технику . Угловая планировка — идеальный вариант для комплектации встроенной техники. При грамотном подборе модулей в такой кухне вполне можно разместить не только привычные кухонные бытовые приборы, но и, к примеру, стиральную машину.
Готовые чертежи кухни. Типы планировки кухонных гарнитуров
Таблица. Основные варианты расположения мебели.
Вариантов расставить мебель и технику — масса, главное, чтобы находящиеся в помещении люди чувствовали себя комфортно.
- В кухнях небольших габаритов часто бытовая техника и мебель устанавливаются вдоль одной из стен, по прямой линии . Этот, достаточно бюджетный вариант гарнитура, удобен для тех, кто не очень много времени уделяет кулинарии, и в квартирах-студиях. Все элементы легко рассчитать и расставить самостоятельно. Но правило рабочего треугольника в данном случае соблюсти сложно, процесс приготовления пищи сопряжен с некоторым неудобством.
Расположение кухонной мебели вдоль стены
- Очень распространена в помещениях среднего размера угловая планировка. В кухне отлично работает правило треугольника . Есть возможность организовать и столовую зону. Но в узких пространствах Г-образный гарнитур разместить не удастся.
Угловая планировка мебели
- В узких или проходных помещениях удобно размещать гарнитур вдоль двух параллельных стен . Если на одной стороне разместить холодильную камеру, а напротив — плиту с мойкой, соблюдается комфортный для работы треугольник. Полноценную обеденную зону при такой планировке разместить вряд ли получится (если только речь не идет об очень просторном помещении), но барную стойку установить можно.
Расположение мебели вдоль двух параллельных стен
- Тем, кто любит подолгу находиться на кухне, подойдет П-образное размещение гарнитура . Оптимальный размер помещения для такой планировки — 10…12 кв. м. Но нужно быть готовым, что визуально подобное расположение мебели сузит пространство.
П-образная планировка
- В просторных помещениях можно вынести рабочую зону в центральную часть кухни . Такой тип планировки отличается функциональностью и предоставляет неограниченные возможности для дизайна.
Рабочая зона по центру кухни
- Те, кто не хочет пользоваться стандартными схемами, могут использовать совмещение различных вариантов , а также дополнить интерьер мобильными элементами, например, установить рабочую панель на колесах, которую при необходимости можно передвигать.
Проект угловой кухни с размерами. Разработка дизайна
В чертежах угловой кухни показывается «рабочий треугольник». Установка мебели согласно дизайну должна выполняться по всей длине смежных стен. Обычно отдельные детали гарнитура устанавливаются совместно с кухонной техникой.
Вариант интерьера и планировки угловой кухни
Когда габариты кухни очень большие, на чертежах, рабочая зона располагается посередине комнаты. В домах угловая кухня бывает квадратной или вытянутой. Пользуясь такой планировкой, можно компактно установить кухонный гарнитур, даже если кухня обладает достаточно маленькими размерами, например, менее 6 кв. метров. Обычно в малогабаритной квартире, для подобной кухни отводится очень малая площадь. Однако на ней без труда устанавливается:
- мойка;
- варочная плита;
При этом рабочая зона получает полную безопасность, когда готовится пища. Для этого ее разделяют варочной плитой и раковиной. В результате брызги воды не попадают на плиту.
Модные стили
Надо сказать, что угловые кухни оформляются в самых разных стилях. Сегодня дизайнеры используют несколько стилевых вариантов.
Классический
Его лучше использовать для больших угловых кухонь. Для этого стиля характерны богатая мебель и роскошная обстановка. Монтируется современная бытовая техника, обычно встраиваемая. Декорирующие элементы находятся в полной гармонии.
Кантри
Такой стиль лучше всего применять в большом загородном коттедже. Этот стиль характеризуется натуральностью всего окружающего. Материалом мебели является качественная массивная древесина.
Декор, в этом случае применяется очень редко. Текстильные материалы должны украшать цветочные узоры.
Наиболее современный стиль. Его отличает простота и большое количество металлических конструкций.Для него характерны большие окна, дающие много света, и монтаж дополнительной подсветки. В этом стиле можно оформлять маленькую кухню.
Нечто среднее между вышеописанными стилями. Может использоваться для создания и разработки дизайна средней и маленькой кухни. Выглядит красиво с максимумом удобств. Положительной стороной этого стиля, считается возможность применения в дизайне любого мебельного гарнитура, не отличающегося высокой стоимостью.
Проект угловой кухни онлайн. Онлайн конструктор кухни. Спроектируйте собственную кухню в 3D
Чтобы не потерять, сохраните в своей соц.сети:
Представленный на этой странице конструктор — простой и легкий в использовании, позволяет спроектировать помещение и расставить шкафы кухонного гарнитура в течение 10-15 минут. Возможности:
- продумать планировку кухни
- нарисовать дизайн-проект в 3D
- сохранить проект на компьютер/флешку
- продолжить рисование, когда удобно
- получить стоимость из калькулятора (кнопка "Отправить на расчет")
- скачать проект в PDF и детализацию в Excel
Как пользоваться? => Инструкция из 12 пунктов +
Вы можете рисовать с нуля, либо использовать один из готовых дизайн-проектов вили в самом конструкторе (последний пункт в левом меню).
Важно! После нажатия кнопки "Отправить на расчет", с вами свяжется менеджер для подтверждения заявки. Актуально только для Москвы.
Хотите узнать, сколько будет стоить гарнитур как в вашем проекте?в онлайн-чате от мебельной компании в Москве.
Поддерживаемые браузеры: Chrome (самая стабильная работа), IE 11, Firefox, Opera.
Есть вопросы? Пишите на kitchen2work@gmail.com
Понравилась наша программа? Делитесь своими проектами и ссылкой на конструктор в соц сетях - для нас это лучшая благодарность.
5 проектов-шаблонов, нарисованных в этом конструкторе
Если кликнуть на картинку, откроется страница с подробным описанием и файлом проекта. Вы сможете использовать предложенный дизайн, и на его основе нарисовать собственную кухню, меняя расположение или цвет шкафов и техники.
Прежде чем начать, посмотрите. Дополнительно можно указать цвет, стиль или планировку. Найдите кухню вашей мечты, и сделайте свой проект!
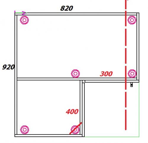
Чертежи угловой кухни своими руками. Как правильно создать чертеж угловой кухни?
С чего начать чертеж кухни? При составлении макета важно знать с чего следует начать, а также необходимые правила, которые помогут вам осуществить задуманное как можно более точно.
Правильный чертеж будущей кухни – залог качественно выполненной работы по изготовлению и установке мебели.
Наберите запрос «Как сделать чертежи проекта кухни своими руками?» и вам откроется множество вариантов, однако далеко не в каждом вы найдете действительно качественную информацию. Нужно найти советы специалистов и ознакомиться с основными видами планировок.
Чертеж вы можете составить вручную или воспользоваться специальной 3D программой. Выгодное преимущество в том, что вы можете рассмотреть его с разных сторон, а не только сверху или сбоку.
Для составления грамотного проекта можно воспользоваться специальной компьютерной программой.
В интернете на сегодняшний день их очень много, поэтому выбирайте на свой вкус. Все зависит от ваших навыков, если вы никогда не делали чертеж сами, ничего страшного, достаточно базового понимания что необходимо, аккуратность и точность в измерениях. Делайте там, где удобнее всего. Самое главное, чтобы схема угловой кухни легко вами читалась, вы могли разобраться в ней.
Создание проекта: с чего начать?
Для начала вам необходимо выполнить замеры стен кухни – высоту двух соседних стен и их ширину. Далее, вам нужно отобразить на своем макете проемы, углы или неровности, которые вы заметили. Замерьте и их. После нужно наметить места расположения коммуникаций, электрических розеток, вентиляционных отверстий. Наиболее важным при проектировании будет являться водопровод и подвод труб для вытяжки.
Начать проект правильнее с замеров самой кухни: ее стен, окон, розеток, отверстий вентиляции и выхода коммуникаций.
Важно! Не забудьте указать где-то отдельно или на самом чертеже, схеме угловой кухни все размеры. После того как все вышеперечисленное отмечено, можно приступать непосредственно, к самой кухонной гарнитуре.
Стандартные размеры кухонных шкафов
Сейчас можно заказать кухонный гарнитур на любой вкус, любых размеров, форм и расцветок. Множество фирм готовы предложить вам свой дизайн-проект. Но прежде чем обратиться к продавцам, вам необходимо знать, сколько места займет вся мебель, да и к тому же, определиться с видом угловой кухни.
Проект угловой кухни с окном. Как оформить окно?
Обустроить помещение, в котором окошко располагается посередине стены, можно по-разному. Если оконный проем находится по центру, то нишу под ним можно задействовать в качестве блока для хранения продуктов либо необходимых для быта предметов — это могут быть как мелочи, необходимые ежедневно, так и вещи, которыми хозяева пользуются пару раз в год.
Широкие подоконники зачастую выполняют роль столешницы, это особенно актуально для кухонь небольшого метража — такую столешницу используют вместо рабочей поверхности, а также переоборудуют ее в мойку, демонтировав батарею, встроив раковину и проведя все необходимые коммуникации.
Однако далеко не всегда окна в помещении располагаются посередине стены, зачастую имеют место угловые варианты расположения оконных проемов – обычно подобная планировка встречается в нестандартных помещениях, к примеру, в вытянутых узких кухнях.
Как и при центральном расположении окна, здесь можно задействовать нишу под окошком — обычно в ней оборудуют мойку или устанавливают плиту.
Если в помещении два окошка, которые располагаются на перпендикулярных стенах либо находятся на небольшом расстоянии друг от друга, то между ними можно установить компактный угловой шкаф с открытыми полками.
Просторная кухня и два расположенных в ней угловых окна — это отличное решение для оформления обеденной зоны: естественное освещение и вид из окна наверняка создадут по-настоящему уютную и теплую обстановку. Здесь можно поставить небольшой диванчик и дополнить его круглым столиком — такая композиция идеально вписывается в пространство между парой окон.
Другой вариант оформления площади между окнами — повесить туда плазму. Помните, что грамотно расположенные элементы кухонной планировки не только сделают пространство уютным, но и зрительно прибавят несколько лишних метров пространству.
Узкие кухни пеналом с окном в конце чаще всего встречаются в частных домах, стандартным новостройкам подобный вариант несвойственен. Подобное сужение кухонного пространства объясняется необходимостью выделить больше места под жилую зону.
Если при этом окно располагается на торцевой стене напротив двери, то глухие стены обычно заставляют мебелью и бытовой техникой. В этом случае крайне важно оставить свободный проход, так чтобы можно было перемещаться по кухне и выполнять все необходимые работы.
